Mẫu nhà cấp 4 đẹp 5×20 có gác lửng là giải pháp hoàn hảo cho những gia đình đông thành viên. Với diện tích 100m², ngôi nhà đáp ứng đầy đủ công năng sinh hoạt, đồng thời phần gác lửng giúp mở rộng không gian để bố trí phòng thờ, góc làm việc hay khu sinh hoạt chung một cách tiện nghi và tối ưu. Trong bài viết này, Bim Concept sẽ giới thiệu đến bạn những mẫu thiết kế ấn tượng cùng các thông tin quan trọng cần biết khi xây dựng và hoàn thiện loại hình nhà ở này.
Đặc điểm của nhà cấp 4 đẹp 5×20 có gác lửng
Nhà cấp 4 kích thước 5x20m có gác lửng được nhiều gia đình lựa chọn nhờ khả năng tối ưu diện tích và công năng. Dưới đây là những đặc điểm nổi bật giúp bạn hiểu rõ hơn về loại hình nhà ở này:
- Diện tích hợp lý, dễ bố trí: Với 100m², ngôi nhà có thể bố trí đầy đủ các không gian cơ bản như phòng khách, bếp, phòng ngủ và nhà vệ sinh. Việc thêm gác lửng giúp tận dụng triệt để chiều cao, mở rộng diện tích sử dụng.
- Tối ưu công năng sử dụng: Gác lửng có thể thiết kế linh hoạt làm phòng thờ, phòng làm việc, phòng ngủ phụ hoặc không gian sinh hoạt chung, mang lại sự tiện nghi mà không làm tăng diện tích xây dựng.
- Chi phí xây dựng hợp lý: So với nhà 2 tầng, mẫu nhà cấp 4 có gác lửng tiết kiệm chi phí hơn nhưng vẫn đảm bảo sự rộng rãi. Đây là lựa chọn phù hợp với nhiều gia đình có ngân sách vừa phải.
- Phong cách thiết kế đa dạng: Có thể áp dụng nhiều phong cách khác nhau từ hiện đại, tối giản đến tân cổ điển. Tông màu, vật liệu và nội thất dễ tùy biến theo sở thích gia chủ.
- Đảm bảo thông thoáng và ánh sáng: Nếu được bố trí cửa sổ, giếng trời hoặc hệ thống thông gió hợp lý, không gian gác lửng vẫn luôn thoáng mát, không bị bí bách dù ở trên cao.

Tổng hợp các mẫu nhà cấp 4 đẹp 5x20m có gác lửng
Bim Concept hiện đang sở hữu BST mẫu nhà cấp 4 đa phong cách, phù hợp nhiều nhu cầu và ngân sách khác nhau. Trong đó, các mẫu nhà cấp 4 đẹp 5x20m có gác lửng nổi bật nhờ thiết kế tối ưu diện tích, tạo không gian sống thoáng và tiện nghi. Đây là gợi ý lý tưởng cho những gia đình muốn vừa tiết kiệm chi phí vừa có một tổ ấm hiện đại.
Mẫu nhà cấp 4 đẹp 5×20 ở nông thôn
Ở nông thôn, lợi thế về diện tích rộng, chi phí nhân công và vật liệu thấp khiến mẫu nhà cấp 4 đẹp 5×20 trở nên đặc biệt được ưa chuộng. Thiết kế của mẫu nhà này nổi bật với không gian thoáng mát, sân vườn rộng rãi và sự gắn kết hài hòa với thiên nhiên.

Mẫu nhà cấp 4 đẹp 5×20 có gác lửng hiện đại, tối giản
Mẫu nhà cấp 4 đẹp 5×20 có gác lửng hiện đại, tối giản gây ấn tượng bởi đường nét tinh gọn, không gian mở và cách bố trí nội thất khoa học. Sự kết hợp hài hòa giữa màu sắc trung tính và vật liệu hiện đại mang đến một không gian sống tiện nghi, thoáng sáng và thời thượng.

Mẫu nhà cấp 4 đẹp 5×20 có gác lửng 2 phòng ngủ
Mẫu nhà cấp 4 gác lửng với 2 phòng ngủ nổi bật nhờ thiết kế gọn gàng, tối ưu diện tích nhưng vẫn đảm bảo đầy đủ công năng. Đây là lựa chọn phù hợp cho gia đình nhỏ, mang đến không gian sống ấm cúng, tiện nghi và thoáng mát.

Mẫu nhà cấp 4 có gác lửng 5x20m với 3 phòng ngủ
Mẫu nhà cấp 4 đẹp 5×20 có gác lửng với 3 phòng ngủ tiện nghi rất phù hợp cho gia đình 3–5 thành viên. Với diện tích 100m2, không gian được bố trí khoa học gồm 1 phòng khách, 1 bếp, 3 phòng ngủ, 1 phòng thờ và 1 nhà vệ sinh chung, đảm bảo đầy đủ công năng và sự tiện lợi trong sinh hoạt.

Mẫu nhà cấp 4 đẹp 5×20 có gác lửng 2 phòng ngủ 1 phòng thờ
Với mẫu nhà cấp 4 đẹp 5×20 có gác lửng với 2 phòng ngủ và 1 phòng thờ được thiết kế khoa học, vừa đảm bảo không gian nghỉ ngơi riêng tư, vừa giữ gìn nét truyền thống thờ cúng. Phòng thờ thường được bố trí ở phía trước nhà hoặc trên gác lửng, giúp tạo sự trang nghiêm, yên tĩnh và thuận lợi về phong thủy.

Mẫu nhà cấp 4 mái Thái đẹp 5×20 có gác lửng
Mẫu nhà cấp 4 đẹp 5×20 có gác lửng mái Thái được ưa chuộng nhờ thiết kế chữ A dốc lớn, thoát nước nhanh, chống nóng và chống ẩm hiệu quả, bền bỉ theo thời gian. Kiểu mái này còn giúp ngôi nhà cao ráo, bề thế và thẩm mỹ hơn. Khi kết hợp cùng mảng tường, màu sắc trẻ trung và vật liệu hiện đại, công trình càng trở nên trang nhã và thời thượng.

Mẫu nhà cấp 4 đẹp 5×20 có gác lửng mái bằng
Mẫu nhà cấp 4 đẹp 5×20 có gác lửng mái bằng với thiết kế mái bằng không chỉ giúp tiết kiệm chi phí xây dựng mà còn có thể tận dụng làm sân thượng, khu phơi đồ hoặc trồng cây xanh. Kết hợp cùng gác lửng, ngôi nhà vừa tối ưu diện tích vừa đảm bảo đầy đủ công năng cho gia đình.

Mẫu nhà cấp 4 đẹp 5×20 có gác lửng mái lệch
Thiết kế mái lệch mang đến vẻ độc đáo và phá cách cho mẫu nhà cấp 4 đẹp có gác lửng 5×20. Kiểu mái này giúp công trình trở nên ấn tượng, hiện đại hơn, đồng thời hỗ trợ thoát nước nhanh và tạo sự thông thoáng. Khi kết hợp cùng không gian gác lửng, ngôi nhà vừa tiện nghi vừa mang dấu ấn cá tính riêng.

Mẫu nhà cấp 4 đẹp 5×20 có gác lửng giá khoảng 500 triệu
Với mức chi phí khoảng 500 triệu, gia đình hoàn toàn có thể sở hữu mẫu nhà cấp 4 gác lửng tiện nghi và thẩm mỹ. Thiết kế tập trung vào công năng cơ bản như phòng khách, bếp, 2–3 phòng ngủ và phòng thờ, đáp ứng nhu cầu sinh hoạt của gia đình nhỏ.

Mẫu nhà cấp 4 gác lửng đẹp 5×20 khoảng 600 triệu
Với tầm chi phí khoảng 600 triệu, mẫu nhà cấp 4 đẹp có gác lửng 5×20 được đầu tư kỹ hơn về kiến trúc và nội thất. Không chỉ đáp ứng công năng sinh hoạt đầy đủ, ngôi nhà còn mang thiết kế hiện đại, thoáng sáng, phù hợp cho gia đình 3–5 thành viên.

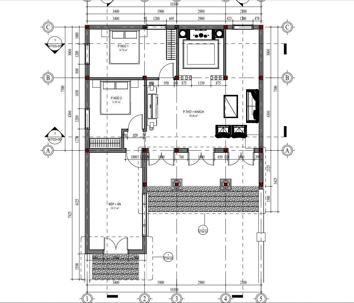
Bản vẽ nhà cấp 4 đẹp 5x20m có gác lửng
Bản vẽ chi tiết giúp gia chủ dễ dàng hình dung cách bố trí công năng và sắp xếp không gian khoa học. Với mẫu nhà cấp 4 5x20m có gác lửng, Bim Concept giới thiệu đến bạn những phương án bản vẽ đẹp và ấn tượng dưới đây:




Ý tưởng thiết kế nội thất cho nhà có gác lửng 5×20
Thiết kế nội thất đóng vai trò quan trọng trong việc tạo nên sự tiện nghi và thẩm mỹ cho mẫu nhà cấp 4 có gác lửng. Dưới đây là một số ý tưởng gợi ý giúp không gian 5×20 trở nên tối ưu và ấn tượng:
Thiết kế nội thất phòng khách
Phòng khách của nhà cấp 4 có gác lửng thường được bố trí sát cầu thang và tiếp liền với không gian bếp. Nên lựa chọn sofa nhỏ gọn, bàn trà đơn giản để không gian thoáng và thuận tiện di chuyển. Kết hợp kệ tivi âm tường hoặc tủ thấp nhằm tăng thêm không gian lưu trữ mà không gây chật chội.

Để phòng khách thêm ấn tượng, có thể sử dụng đèn thả trần hoặc đèn led âm trần tạo điểm nhấn ánh sáng. Gam màu sáng hoặc trung tính kết hợp cùng vài chi tiết trang trí như tranh treo tường, gương hoặc chậu cây nhỏ sẽ giúp không gian vừa hiện đại vừa ấm cúng.
Thiết kế nội thất phòng bếp
Không gian bếp thường được bố trí ngay sau phòng khách, vừa thuận tiện cho sinh hoạt. Bếp và tủ bếp dạng chữ L là lựa chọn phổ biến, giúp tận dụng tối đa các góc tường và tạo không gian nấu nướng rộng rãi. Với những mẫu nhà cấp 4 đẹp 5×20 có gác lửng, kiểu bếp này còn tạo lối đi thông thoáng, không gây bí bách.

Thiết kế nội thất phòng bếp nhà cấp 4 đẹp
Màu sắc bếp nên ưu tiên gam sáng hoặc trung tính như trắng, be, xám kết hợp gỗ để vừa sạch vừa thoáng rộng. Bàn ăn nhỏ gọn có thể đặt cạnh bếp, dạng gấp hoặc kết hợp đảo bếp để tiết kiệm diện tích. Đồng thời, cần trang bị hút mùi, quạt thông gió và cửa sổ để giữ không gian luôn thoáng, không ám mùi.
Thiết kế nội thất phòng ngủ
Đối với mẫu nhà cấp 4 đẹp 5×20 có gác lửng, số lượng phòng ngủ thường khoảng 3–4 phòng, phù hợp với gia đình đông thành viên. Diện tích mỗi phòng khoảng 10–15m2, vừa đủ để bố trí nội thất cơ bản như giường, tủ, bàn trang điểm, bàn làm việc và tab đầu giường, đảm bảo sự tiện nghi.

Để không gian nghỉ ngơi thoải mái hơn, màu sắc phòng ngủ nên chọn các tông nhẹ nhàng như trắng, be, xám hoặc pastel, kết hợp điểm nhấn nâu gỗ để tạo sự ấm áp. Ngoài ra, có thể tận dụng ánh sáng tự nhiên qua cửa sổ và dùng rèm mỏng, vừa tiết kiệm điện vừa mang lại cảm giác thư giãn, dễ chịu.
Thiết kế nội thất phòng vệ sinh
Phòng vệ sinh trong mẫu nhà cấp 4 có gác lửng 5×20 thường được bố trí gọn gàng ở cuối nhà hoặc xen kẽ giữa các phòng ngủ để tiện sử dụng. Diện tích tuy không lớn nhưng vẫn đảm bảo đầy đủ công năng cơ bản như lavabo, bồn cầu, vòi tắm hoa sen hoặc vách kính tắm đứng.

Thiết kế nội thất phòng thờ
Trong nhà cấp 4 có gác lửng 5×20, phòng thờ thường đặt trên tầng lửng để đảm bảo sự yên tĩnh và trang nghiêm. Nội thất chủ yếu bằng gỗ màu trầm, bàn thờ bố trí hợp phong thủy, kết hợp vách ngăn tinh tế để tạo sự riêng tư. Ánh sáng nên dùng đèn vàng dịu nhẹ, kèm cửa sổ nhỏ hoặc ô thoáng để không gian thanh tịnh, thoáng mát.

Các lưu ý quan trọng khi xây nhà cấp 4 5×20 có gác lửng
Khi xây dựng nhà cấp 4 có gác lửng diện tích 5×20, gia chủ cần tính toán kỹ lưỡng để tối ưu công năng và đảm bảo tính thẩm mỹ. Dưới đây là những lưu ý quan trọng bạn nên biết:
- Kết cấu móng và chịu lực: Vì có thêm gác lửng nên cần thiết kế móng và cột chắc chắn, đảm bảo an toàn và độ bền lâu dài cho ngôi nhà.
- Chiều cao hợp lý: Nên để tầng trệt cao từ 3,6–4m, gác lửng khoảng 2,5–2,8m để không gian thoáng đãng, tránh cảm giác bí bách.
- Cầu thang và lối đi: Cầu thang nên bố trí gọn gàng, bậc thang vừa phải, đảm bảo an toàn và không chiếm quá nhiều diện tích sử dụng.
- Ánh sáng và thông gió: Ưu tiên thiết kế cửa sổ, giếng trời hoặc cửa kính lớn để lấy sáng tự nhiên và lưu thông không khí, giúp nhà luôn sáng và mát.
- Bố trí công năng khoa học: Phân chia hợp lý các phòng khách, bếp, phòng ngủ, phòng thờ… để phù hợp nhu cầu gia đình, đồng thời đảm bảo sự tiện nghi.
- Phong thủy và thẩm mỹ: Xem xét hướng nhà, vị trí phòng thờ và cửa chính để hợp phong thủy. Đồng thời, lựa chọn màu sắc, nội thất hài hòa với tổng thể kiến trúc.
Hy vọng bài viết này đã giúp bạn tìm được một mẫu nhà cấp 4 có gác lửng 5×20 phù hợp cho riêng mình. Nếu có nhu cầu tư vấn thiết kế và thi công căn hộ, nhà phố, biệt thự hay nhà cấp 4 hay liên hệ với chung tôi qua hotline 0916.788.777 để được tư vấn báo giá chi tiết nhất.
Có thể bạn quan tâm:

