Nhà cấp 4 mái Thái chữ L là mẫu thiết kế phổ biến tại Việt Nam, đặc biệt ở nông thôn. Kiểu nhà này ghi điểm với mái Thái dốc cao thoát nước nhanh, bền đẹp theo thời gian, kết hợp cùng dáng chữ L độc đáo giúp tối ưu diện tích và tạo không gian thoáng đãng. Nếu bạn đang tìm kiếm mẫu nhà cấp 4 mái Thái chữ L đẹp, hiện đại, hãy cùng Bim Concept khám phá ngay những thiết kế ấn tượng và kinh nghiệm xây dựng hữu ích dưới đây.
Ưu điểm của nhà cấp 4 mái Thái chữ L
Nhà cấp 4 mái Thái chữ L ngày càng được nhờ vẽ đẹp thẩm mỹ, phù hợp với lối sống hiện đại của người Việt hiện nay. Dưới đây là những ưu điểm nổi bật mà kiểu nhà này mang lại:
- Thiết kế thẩm mỹ, sang trọng: Mái Thái dốc cao kết hợp dáng chữ L độc đáo giúp ngôi nhà trở nên cân đối, thanh thoát và cuốn hút ngay từ cái nhìn đầu tiên. Đây là kiểu kiến trúc vừa mang nét truyền thống, vừa hiện đại.
- Công năng linh hoạt, tối ưu diện tích: Với dáng chữ L, không gian được phân chia rõ ràng và hợp lý, tạo sự riêng tư giữa các phòng. Gia đình đông người hay nhiều thế hệ vẫn có thể sinh hoạt thoải mái.
- Thoáng mát và tràn ngập ánh sáng: Các mặt của nhà chữ L dễ bố trí cửa sổ, sân vườn hoặc hiên, giúp lưu thông gió và tận dụng ánh sáng tự nhiên. Điều này mang đến cảm giác dễ chịu, tiết kiệm điện năng.
- Chi phí xây dựng hợp lý: So với nhà tầng, chi phí để xây một căn nhà cấp 4 mái Thái chữ L thường thấp hơn nhưng vẫn đảm bảo tính thẩm mỹ và độ bền cao, phù hợp với nhiều mức ngân sách.
- Phù hợp nhiều loại đất và địa hình: Kiểu nhà này có thể áp dụng trên diện tích nhỏ, vừa hoặc lớn. Dù ở nông thôn hay thành phố, thiết kế đều linh hoạt để thích nghi với quỹ đất khác nhau.

Mái Thái chữ L, mảng tường sơn trắng và ốp đá hiện đại
Lưu ý: Chủ đầu tư cần lưu ý là kiểu nhà khuyết góc thường sẽ không tốt về mặt phong thủy, nên tham khảo các chuyên gia có chuyên môn để bố trí không gian khuyết này thật hợp lý và phù hợp với phong thủy.
Tổng hợp bản vẽ nhà cấp 4 Mái Thái chữ L ấn tượng
Bản vẽ mặt bằng là bước quan trọng để bố trí công năng và nội thất trước khi thi công, giúp đảm bảo tiến độ và hạn chế sai sót. Với tay nghề và kinh nghiệm, kiến trúc sư sẽ mang đến thiết kế hài hòa, tối ưu không gian. Dưới đây là những mẫu bản vẽ do Bim Concept tổng hợp để bạn tham khảo.




89+ Mẫu nhà cấp 4 mái Thái chữ L đẹp, hiện đại
Mẫu nhà cấp 4 chữ L phong cách hiện đại
Mẫu nhà cấp 4 chữ L phong cách hiện đại ghi điểm nhờ hình khối vuông vắn, mặt tiền tối giản nhưng tinh tế. Các mảng tường phẳng kết hợp cửa kính rộng mở giúp không gian luôn tràn ngập ánh sáng tự nhiên.

Nhà cấp 4 chữ L mái Thái phong cách Tân Cổ Điển
Nhà cấp 4 chữ L mái Thái phong cách Tân Cổ Điển mang vẻ đẹp sang trọng với những đường phào chỉ tinh tế và mặt tiền cân đối. Mái Thái dốc cao kết hợp cùng gam màu sáng tạo nên sự bề thế nhưng vẫn thanh thoát.

Mẫu nhà cấp 4 mái Thái chữ L ở nông thôn
Những mẫu nhà cấp 4 mái Thái chữ L ở nông thôn thường gắn liền với không gian vườn rộng rãi, thoáng mát và gần gũi thiên nhiên. Thiết kế mái Thái dốc cao vừa tạo dáng vẻ bề thế, vừa giúp chống nóng, thoát nước hiệu quả.

Mẫu nhà cấp 4 mái Thái chữ L có sân vườn thoáng mát
Mẫu nhà cấp 4 mái Thái chữ L có sân vườn trở thành lựa chọn lý tưởng từ nông thôn đến thành phố nhờ không gian thoáng đãng, nhiều cây xanh và góc nhìn đẹp. Sự kết hợp giữa thảm cỏ, tiểu cảnh cùng hệ cửa kính rộng mở giúp ngôi nhà luôn gần gũi thiên nhiên và tràn đầy sinh khí.

Nhà cấp 4 chữ L mái Thái có gara ô tô tiện lợi
Nhà cấp 4 chữ L mái Thái có gara ô tô mang lại sự tiện lợi trong sinh hoạt và đảm bảo an toàn cho phương tiện. Gara thường được bố trí gọn gàng ngay cạnh khối nhà chính, vừa tiết kiệm diện tích vừa giữ được tính thẩm mỹ tổng thể.

Thiết kế nhà cấp 4 mái Thái chữ L 2 phòng ngủ
Nhà cấp 4 mái Thái 2 phòng ngủ phù hợp với gia đình nhỏ hoặc vợ chồng trẻ mong muốn không gian gọn gàng nhưng vẫn tiện nghi. Thiết kế chữ L giúp bố trí các phòng khoa học, đảm bảo sự riêng tư và thoáng mát. Kết hợp cùng hệ thống mái Thái kiên cố, khỏe khoắn, vừa chống thời tiết xấu vừa tạo điểm nhấn thẩm mỹ ấn tượng.

Thiết kế nhà cấp 4 mái Thái chữ L 3 phòng ngủ
Nhà cấp 4 mái Thái chữ L 3 phòng ngủ là lựa chọn lý tưởng cho gia đình 3–4 thành viên, đáp ứng đầy đủ công năng sinh hoạt. Kiến trúc thường hướng đến sự tối giản, sử dụng gam màu tươi sáng và vật liệu hiện đại để tạo cảm giác thoáng rộng. Nội thất đa năng cũng được ưu tiên, giúp tối ưu diện tích và tiết kiệm chi phí xây dựng.

Có thể tham khảo thêm: 25+ Mẫu nhà cấp 4 3 phòng ngủ 300 triệu đẹp, ấn tượng
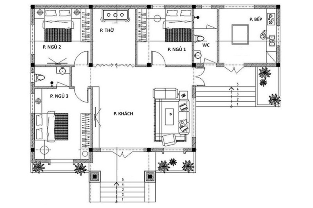
Thiết kế nhà cấp 4 mái Thái chữ L 4 phòng ngủ
Mẫu nhà cấp 4 mái Thái chữ L 4 phòng ngủ thường có diện tích rộng, rất phù hợp cho gia đình nhiều thành viên cùng sinh sống. Công năng bố trí phổ biến gồm phòng khách liền bếp, 4 phòng ngủ, phòng thờ và một nhà vệ sinh chung. Phần chữ L linh hoạt có thể tận dụng làm tiểu cảnh, khu vực thưởng trà hoặc gara ô tô tiện lợi.

Mẫu nhà cấp 4 chữ L mái Thái 80m2
Ngôi nhà cấp 4 mái Thái chữ L 80m2 có bố cục gọn gàng với sân trước và hiên rộng tạo điểm nhấn cho mặt tiền. Kiến trúc tối giản kết hợp cửa kính lớn giúp lấy sáng tự nhiên, trong khi mái Thái dốc cao vừa thoát nước nhanh vừa tạo nét thanh thoát. Không gian bên trong thường bố trí phòng khách liền bếp, 2 phòng ngủ và 1 vệ sinh chung. Khu vực chữ L có thể tận dụng làm sân hiên thư giãn hoặc chỗ để xe tiện lợi.

Nhà cấp 4 mái Thái chữ L 100m2
Với diện tích 100m2, kiểu nhà này thường toát lên vẻ bề thế nhưng vẫn gần gũi nhờ sự kết hợp hài hòa giữa sân vườn, hiên rộng và hệ mái dốc thanh thoát. Cửa kính lớn mở ra nhiều góc nhìn thoáng đãng, mang ánh sáng và gió tự nhiên tràn ngập khắp không gian. Bên trong có thể sắp xếp 3 phòng ngủ, phòng khách liền bếp ăn cùng phòng thờ trang nghiêm. Phần chữ L linh hoạt để làm gara, góc trà chiều hay một mảng xanh thư giãn cho cả gia đình.

Có thể tham khảo thêm: 99+ Mẫu nhà cấp 4 mái Thái 100m2 đẹp, tiện nghi
Nhà cấp 4 chữ L mái Thái 150m2
Nhà cấp 4 chữ L mái Thái 150m2 với kiến trúc mặt tiền sang trọng, mái Thái dốc cao kết hợp cùng các mảng tường ốp đá hoặc gạch thẻ tạo điểm nhấn bề thế. Công năng thường gồm phòng khách lớn, bếp ăn thoáng rộng, 4 phòng ngủ tiện nghi và phòng thờ riêng biệt.

Mẫu thiết kế nhà cấp 4 mái Thái chữ L 200 triệu
Với chi phí khoảng 200 triệu, mẫu nhà cấp 4 mái Thái chữ L thường được thiết kế đơn giản, tập trung vào công năng cơ bản. Kiến trúc gọn gàng với mái Thái dốc nhẹ, tường sơn sáng kết hợp cửa gỗ hoặc cửa nhôm kính giá rẻ để tiết kiệm chi phí. Bên trong thường bố trí phòng khách liền bếp, 1–2 phòng ngủ và một nhà vệ sinh chung.

Mẫu thiết kế nhà cấp 4 mái Thái chữ L 300 triệu
Mẫu nhà cấp 4 mái Thái chữ L chi phí 300 triệu có thể hoàn thiện với mặt tiền sáng sủa và mái dốc thanh thoát. Thiết kế thường gồm phòng khách liền bếp, 2 phòng ngủ và 1 nhà vệ sinh chung, đủ tiện nghi cho gia đình nhỏ. Vật liệu phổ biến là gạch thẻ, cửa nhôm kính, vừa tiết kiệm vừa bền đẹp.

Có thê tham khảo thêm: 101+ Mẫu nhà cấp 4 đẹp giá rẻ 300 triệu tối giản, tiết kiệm chi phí
Kinh nghiệm xây dựng nhà cấp 4 mái Thái chữ L
Để sở hữu một căn nhà cấp 4 chữ L mái Thái vừa đẹp, hiện đại, vừa bền chắc và tiết kiệm chi phí, gia chủ cần chú ý ngay từ khâu thiết kế đến thi công. Dưới đây là những kinh nghiệm quan trọng giúp bạn có được ngôi nhà ưng ý và hạn chế tối đa phát sinh không mong muốn.
Lập kế hoạch và dự trù kinh phí hợp lý
Một bản dự toán chi phí đầy đủ và rõ ràng sẽ giúp quá trình thi công diễn ra thuận lợi, hạn chế tối đa rủi ro phát sinh. Gia chủ nên phối hợp chặt chẽ với nhà thầu để lập kế hoạch tài chính chi tiết, đảm bảo cân đối ngân sách trong suốt quá trình xây dựng.

Lựa chọn phương án thiết kế phù hợp
Lựa chọn phương án thiết kế phù hợp là bước quan trọng quyết định thẩm mỹ, công năng và chi phí xây dựng của ngôi nhà. bạn nên cân nhắc diện tích, số phòng, phong cách kiến trúc và ngân sách để tìm ra phương án tối ưu nhất.

Lựa chọn vật liệu xây dựng
Độ bền của ngôi nhà phụ thuộc nhiều vào chất lượng vật liệu, vì vậy cần chọn vật liệu vừa bền, vừa thẩm mỹ, đồng thời phù hợp ngân sách. bạn nên tham khảo ý kiến kiến trúc sư hoặc nhà thầu để đảm bảo lựa chọn vật liệu tối ưu, an toàn và phù hợp với công năng sử dụng.

Đảm bảo yếu tố phong thủy
Cũng như các loại công trình khác, yếu tố phong thủy cần được chú trọng từ khâu thiết kế đến thi công, vì nó ảnh hưởng đến tài lộc, sức khỏe và hòa khí gia đình. Khi xây nhà, bạn nên cân nhắc hướng nhà, vị trí cửa chính, bố trí các phòng và màu sắc sao cho hợp mệnh. Có thể tham khảo ý kiến chuyên gia phong thủy sẽ giúp ngôi nhà vừa hài hòa, vừa tràn đầy năng lượng tích cực.

Lựa chọn nhà thầu chuyên nghiệp, uy tín
Chọn nhà thầu chuyên nghiệp, uy tín là yếu tố quan trọng quyết định chất lượng và tiến độ thi công. Bạn nên tham khảo đánh giá, kinh nghiệm thực tế và các dự án đã thực hiện để đảm bảo chọn được đối tác đáng tin cậy. Hợp tác với nhà thầu chất lượng giúp ngôi nhà hoàn thiện đúng kế hoạch, an toàn và bền vững.

Gợi ý phối cảnh và bố trí công năng cho nhà cấp 4 chữ L mái Thái
Để ngôi nhà cấp 4 chữ L mái Thái vừa đẹp mắt vừa tiện nghi, việc lên ý tưởng về phối cảnh và bố trí công năng là yếu tố vô cùng quan trọng. Dưới đây là một số gợi ý chi tiết giúp bạn hình dung rõ ràng hơn về cách thiết kế ngoại thất và sắp xếp các không gian chức năng bên trong:
Thiết kế mặt tiền đẹp, thu hút
Mặt tiền là điểm nhấn quan trọng giúp ngôi nhà cấp 4 chữ L mái Thái trở nên ấn tượng và thu hút. Hãy chú ý chọn màu sắc hài hòa giữa tường và mái, kết hợp vật liệu như gỗ, đá hay gạch ốp để tăng tính thẩm mỹ và bền bỉ. Bố trí cửa chính, cửa sổ cân đối, tạo điểm nhấn bằng lam gỗ, đèn ngoại thất hay tiểu cảnh nhỏ sẽ giúp mặt tiền vừa hiện đại vừa gần gũi hơn.

Bố trí sân vườn thoáng mát
Sân vườn là không gian mở giúp ngôi nhà cấp 4 chữ L mái Thái trở nên thoáng đãng và dễ chịu. Nên bố trí lối đi rộng rãi, kết hợp cây xanh, tiểu cảnh và bồn hoa để tạo sự sinh động, gần gũi với thiên nhiên. Đồng thời, lựa chọn cây cối hợp lý theo hướng nắng gió sẽ giúp sân vườn luôn mát mẻ, đồng thời tạo điểm nhấn thẩm mỹ cho toàn bộ ngôi nhà.

Bố trí nội thất thông minh, hài hòa
Sắp xếp nội thất khéo léo chính là “chìa khóa” biến ngôi nhà trở nên tiện nghi và thoải mái. Nên tận dụng tối đa không gian bằng đồ nội thất đa năng, sắp xếp các phòng chức năng liền mạch, thuận tiện di chuyển. Lựa chọn màu sắc, ánh sáng và vật liệu hài hòa giữa các khu vực sẽ tạo cảm giác rộng rãi, ấm cúng và cân đối cho toàn bộ ngôi nhà.

Hãy để Bim Concept biến ý tưởng về ngôi nhà cấp 4 mái Thái chữ L của bạn thành hiện thực. Với kinh nghiệm dày dặn và hàng loạt công trình thiết kế vầ thi công ấn tượng đã hoàn thiện, chúng tôi tự tin kiến tạo không gian sống vừa thẩm mỹ, vừa tiện nghi. Mỗi chi tiết, từ mái nhà đến sân vườn, đều được chăm chút tỉ mỉ để phản ánh phong cách và cá tính riêng của bạn. Gọi ngay 0916.788.777 để đội ngũ Bim Concept đồng hành, tư vấn và hiện thực hóa ngôi nhà của bạn.
