Căn hộ 69m2 là diện tích phổ biến trong các khu chung cư hiện nay, đòi hỏi sự tính toán kỹ lưỡng để đảm bảo vừa đẹp vừa tiện nghi. Với kinh nghiệm thiết kế thực tế, Bim Concept mang đến nhiều mẫu thiết kế nội thất chung cư 69m2 đa phong cách từ hiện đại, tối giản đến tân cổ điển giúp tối ưu từng mét vuông không gian và thể hiện rõ gu thẩm mỹ của gia chủ.
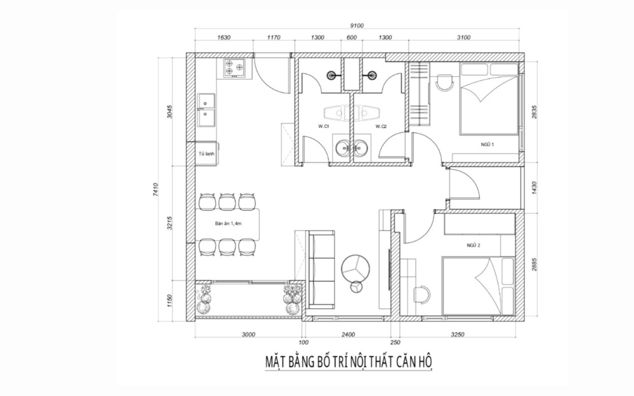
Bản vẽ bố trí mặt bằng nội thất chung cư 69m2
Bản vẽ mặt bằng là thành phần quan trọng giúp định hình công năng và cách sắp xếp không gian sống khoa học cho mỗi căn hộ. Với kinh nghiệm thiết kế nội thất căn hộ tại dự án Sun Cosmo Residence nói riêng và các chung cư tại Đà Nẵng nói chung, Bim Concept sẽ gợi ý cho bạn các mẫu bản vẽ mặt bằng bố trí nội thất khoa học.




Mẫu thiết kế nội thất chung cư 69m2 đẹp, tiện nghi
Không gian sống lý tưởng không chỉ nằm ở diện tích mà còn ở cách bố trí và lựa chọn phong cách nội thất phù hợp. Với căn hộ 69m2, việc thiết kế khéo léo giúp tối ưu công năng, mang lại cảm giác rộng rãi và thẩm mỹ cao. Các mẫu thiết kế mà Bim Concept giới thiệu sau đây vừa đẹp và tiện nghi, lại đáp ứng đa dạng gu thẩm mỹ và nhu cầu sinh hoạt của từng gia đình.
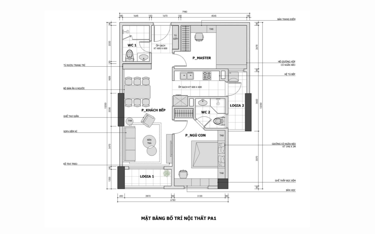
Mẫu thiết kế nội thất chung cư 69m2 tại Sun Cosmo Residence
Mẫu thiết kế nội thất chung cư 69m2 tại Sun Cosmo Residence được Bim Concept định hướng theo phong cách hiện đại, lấy tone trắng sáng làm chủ đạo để tạo cảm giác rộng và thoáng hơn. Không gian gồm phòng khách liền bếp giúp kết nối sinh hoạt chung, hai phòng ngủ được bố trí gọn gàng, đảm bảo sự riêng tư và tiện nghi. Đây là giải pháp lý tưởng cho thiết kế căn hộ dịch vụ hoặc gia đình trẻ yêu thích phong cách sống năng động, tinh giản nhưng vẫn sang trọng.
>>> Xem chi tiết dự án: SUN COSMO RESIDENCE – 69M2
Mẫu thiết kế nội thất căn hộ dịch vụ nhỏ, tiện nghi
Mẫu thiết kế nội thất căn hộ dịch vụ nhỏ này được Bim Concept tối giản về bố cục nhưng vẫn đảm bảo đầy đủ tiện nghi cho người ở. Không gian gồm khu bếp liền phòng ăn giúp tiết kiệm diện tích và tạo sự thông thoáng, một phòng ngủ riêng mang lại cảm giác thư giãn, cùng toilet gọn gàng, sạch sẽ. Với cách bố trí khoa học và vật liệu hiện đại, căn hộ trở thành lựa chọn hoàn hảo cho người trẻ hoặc khách thuê ngắn hạn yêu thích sự tiện dụng và gọn gàng.
>>> Xem chi tiết dự án: SUN PONTE RESIDENCE – 50M2
Giải pháp tối ưu không gian trong căn hộ 69m2
Không gian căn hộ 69m2 tuy không quá lớn nhưng nếu biết cách tổ chức hợp lý, vẫn có thể mang lại cảm giác rộng rãi và đầy đủ tiện nghi. Trong quá trình thiết kế nội thất chung cư 69m2, các kiến trúc sư của Bim Concept luôn chú trọng đến việc tối ưu công năng, tận dụng từng mét vuông hiệu quả nhất.
Bố trí khu vực chức năng khoa học
Trong căn hộ diện tích vừa phải, việc chia không gian theo 5 khu vực chức năng rõ ràng nấu nướng, lưu trữ, ăn uống, nghỉ ngơi và sinh hoạt chung giúp tối ưu dòng di chuyển và công năng sử dụng. Khi thiết kế nội thất chung cư 69m2, Bim Concept thường kết hợp phòng khách liền bếp để tạo sự liên kết không gian, đồng thời bố trí nội thất gọn gàng nhằm mang lại cảm giác thông thoáng, thuận tiện trong sinh hoạt.

Kết hợp nội thất đa năng và thiết kế công thái học
Sử dụng nội thất đa năng là giải pháp thông minh cho căn hộ có diện tích giới hạn. Các món đồ như giường gấp, bàn ăn mở rộng hay tủ âm tường vừa giúp tiết kiệm diện tích vừa tăng tính thẩm mỹ. Bên cạnh đó, việc áp dụng nguyên tắc công thái học trong thiết kế nội thất căn hộ Sun Cosmo Residence giúp không gian thân thiện và tiện nghi hơn, mang lại sự thoải mái tối đa cho người sử dụng.

Tối ưu ánh sáng và màu sắc
Ánh sáng và màu sắc đóng vai trò lớn trong việc định hình cảm nhận về không gian. Đối với thiết kế căn hộ dịch vụ hay căn hộ 69m2, nên ưu tiên gam màu sáng, trung tính kết hợp ánh sáng tự nhiên và hệ đèn ẩn để mở rộng chiều sâu thị giác. Bim Concept thường sử dụng gương, vật liệu phản chiếu và ánh sáng gián tiếp để tạo hiệu ứng không gian thoáng đãng, giúp căn hộ nhỏ trở nên sang trọng và dễ chịu hơn.

Tìm đơn vị thiết kế – thi công nội thất căn hộ uy tín
Với nhiều năm kinh nghiệm trong lĩnh vực thiết kế căn hộ dịch vụ và thi công thực tế tại hàng loạt dự án chung cư cao cấp ở Đà Nẵng như Sun Cosmo Residence, Regal Pavillon, Bim Concept được đánh giá là một trong những đơn vị uy tín hàng đầu. Đội ngũ kiến trúc sư của Bim luôn chú trọng đến tính thẩm mỹ, công năng và chi phí tối ưu cho từng khách hàng. Dưới đây là những ưu điểm nổi bật khi lựa chọn Bim Concept làm đối tác thiết kế – thi công nội thất căn hộ:
- Tư vấn thiết kế cá nhân hóa, phù hợp với phong cách và ngân sách của từng khách hàng.
- Quy trình làm việc chuyên nghiệp, minh bạch và cam kết đúng tiến độ.
- Đội ngũ thi công tay nghề cao, đảm bảo chất lượng hoàn thiện từng chi tiết.
- Cung cấp gói thiết kế – thi công trọn gói, giúp tiết kiệm chi phí và thời gian.
- Chính sách bảo hành, hậu mãi rõ ràng, hỗ trợ tận tâm sau bàn giao.
Một không gian sống đẹp và tiện nghi luôn bắt đầu từ bản thiết kế được đầu tư chỉn chu. Nếu bạn đang tìm kiếm ý tưởng hoặc đơn vị thiết kế nội thất chung cư 69m2 chuyên nghiệp, Bim Concept sẽ là lựa chọn đáng tin cậy đấy nhé!
Thông tin liên hệ:
- HOTLINE: 0916.788.777
- Fanpage: https://www.facebook.com/Thietkevathicongbimconcept

