SUN PONTE RESIDENCE – 50M2
Chủ Đầu Tư: Chị Nguyệt
Diện Tích Đất: Đang cập nhật
Diện Tích XD: 50m2
KTS Thực Hiện: Thu Uyên
Phong Cách: Hiện đại
Công Năng: K - B, PN (2)
Năm Thực Hiện: 2025
Ngân Sách: Đang cập nhật
Khuyến mãi đặc biệt giảm 50% phí thiết kế - khi thi công nội thất
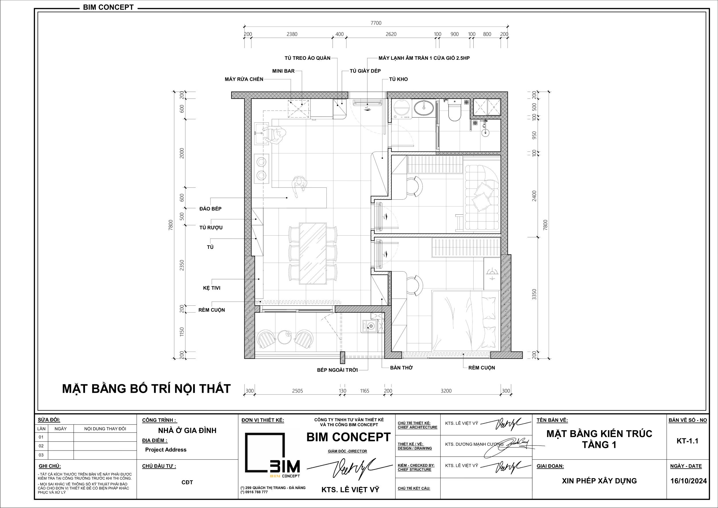
Với diện tích chỉ khoảng 50m2, việc bố trí không gian hợp lý là yếu tố then chốt để đảm bảo tính tiện nghi và thẩm mỹ cho căn hộ. Trong bài viết này, Bim Concept sẽ giới thiệu chi tiết bản vẽ thiết kế nội thất căn hộ 50m2 tại dự án Sun Ponte Residence, giúp bạn hình dung rõ cách sắp xếp từng khu vực chức năng.

Thiết kế nội thất phòng khách bếp
Do nhu cầu sinh hoạt chủ yếu của gia đình nên gia chủ lựa chọn thiết kế nội thất căn hộ 50m2 theo hướng mở, không tách biệt phòng khách riêng. Không gian bếp liền kề bàn ăn được bố trí gọn gàng, hiện đại với tủ bếp chữ L cao kịch trần giúp tận dụng tối đa diện tích lưu trữ.
Gam màu trung tính kết hợp ánh sáng vàng tạo cảm giác ấm cúng và tinh tế. Cách bố trí này không chỉ đảm bảo tính thẩm mỹ mà còn thể hiện sự tiện nghi đặc trưng của thiết kế nội thất chung cư hiện đại.











Thiết kế nội thất phòng ngủ
Phòng ngủ master
Không gian phòng ngủ master trong bản vẽ thiết kế nội thất chung cư 50m2 được bố trí tinh gọn nhưng sang trọng. Màu be chủ đạo kết hợp ánh sáng tự nhiên từ khung cửa kính lớn mang lại cảm giác thoáng đãng và thư giãn. Giường ngủ bọc nệm êm ái, kệ đầu giường kết hợp đèn ngủ hiện đại giúp cân bằng ánh sáng. Góc bàn trang điểm nhỏ gọn cạnh tủ áo âm tường tạo nên sự tiện nghi tối đa cho thiết kế căn hộ dịch vụ.






Phòng ngủ nhỏ
Phòng ngủ bé được bố trí giường tầng thông minh, tối ưu không gian sử dụng. Màu sắc trung tính phối cùng ánh sáng vàng ấm từ hệ đèn âm tường giúp căn phòng trở nên ấm cúng và dễ chịu. Bàn học liền tủ và gương tròn phát sáng tạo điểm nhấn hiện đại, khơi gợi sự sáng tạo cho trẻ. Không gian nhỏ nhưng đầy đủ công năng, phù hợp phong cách thiết kế căn hộ dịch vụ hiện đại, tiện nghi.



Nếu bạn đang tìm kiếm giải pháp thiết kế nội thất căn hộ 50m2 vừa đẹp, tiện nghi lại tối ưu chi phí, Bim Concept chính là lựa chọn đáng tin cậy. Với đội ngũ kiến trúc sư giàu kinh nghiệm và gu thẩm mỹ tinh tế, Bim Concept mang đến không gian sống phù hợp với phong cách riêng của từng gia chủ. Liên hệ ngay với Bim Concept qua HOTLINE: 0916.788.777 để được tư vấn miễn phí và sở hữu tổ ấm hoàn hảo cho mình.
Tham khảo thêm: 50+ Mẫu thiết kế nội thất chung cư 50m2 đẹp, tiện nghi
