Thiết kế nội thất chung cư 50m2 luôn đòi hỏi sự khéo léo trong việc tối ưu không gian để đảm bảo vừa tiện nghi vừa thẩm mỹ. Với diện tích vừa phải, mỗi chi tiết trong thiết kế căn hộ cần được tính toán kỹ lưỡng nhằm mang đến sự hài hòa và thoải mái cho gia chủ. Cùng Bim Concept tham khảo các bản vẽ thiết kế nội thất căn hộ 50m2 tiện nghi để cho thuê hoặc để ở qua bài viết này bạn nhé!
Đặc điểm khi thiết kế nội thất chung cư 50m2
Với căn hộ 50m2, các chuyên viên thiết kế nội thất của Bim Concept thường hướng khách hàng đến việc bố trí 1 phòng khách liền bếp và 1 phòng ngủ hoặc dạng 1 phòng ngủ +. 50m2 là diện tích không quá thoải mái đối với 1 căn hộ chung cư, do vậy cách sắp xếp nội thất cần khoa học để đảm bảo căn hộ vẫn thoáng đãng, tiện nghi.

Nhìn chung, căn hộ dạng này sẽ rất phù hợp cho người độc thân, cặp đôi trẻ hoặc mục đích cho thuê nhờ chi phí hợp lý và công năng đáp ứng đầy đủ nhu cầu sinh hoạt hàng ngày.
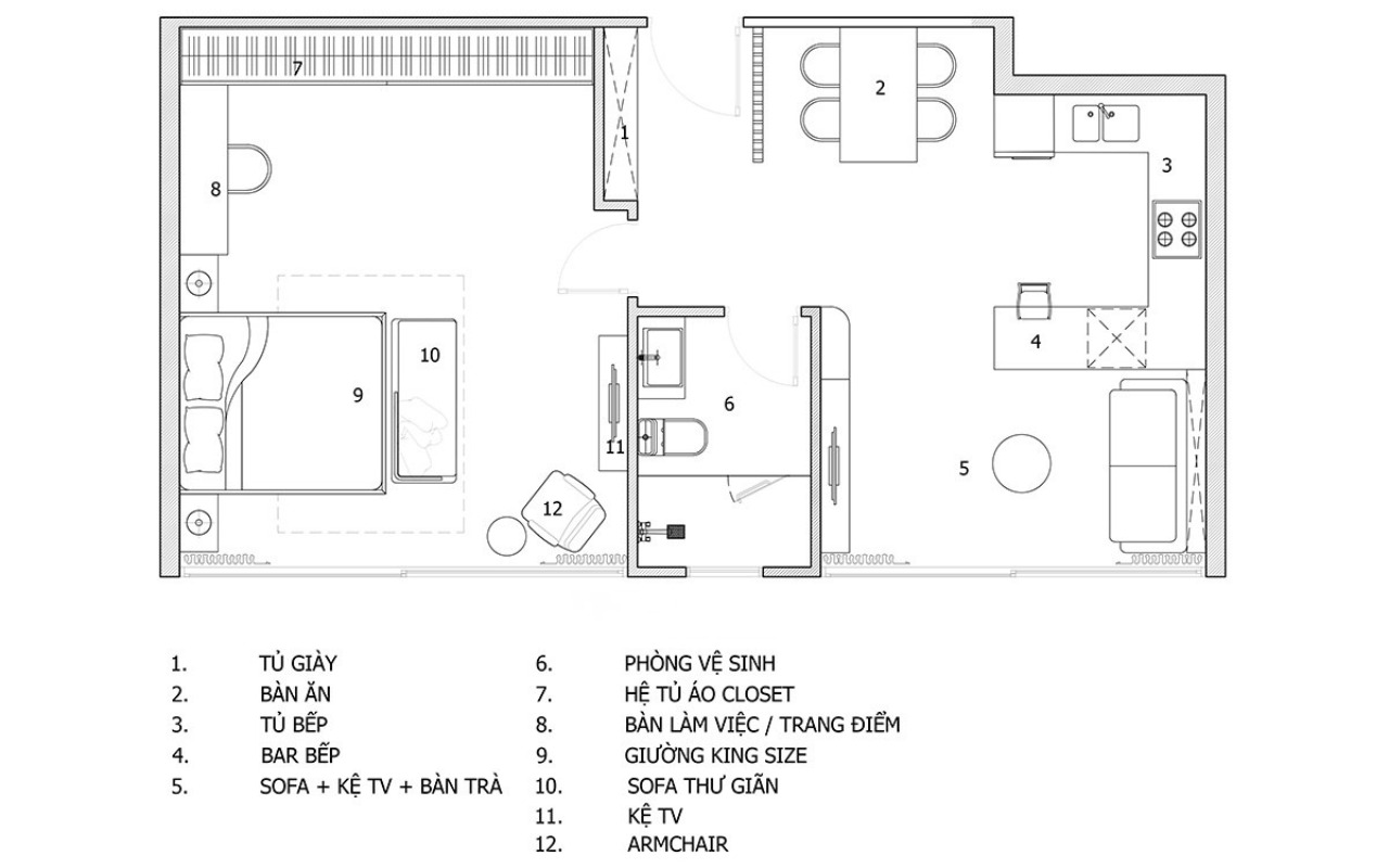
Bản vẽ bố trí mặt bằng nội thất căn hộ 50m2
Với kinh nghiệm thực hiện các dự án chung cư tại Đà Nẵng, Bim Concept gợi ý cho bạn bản vẽ bố trí mặt bằng nội thất căn hộ 50m2 để giúp gia chủ hình dung rõ ràng cách sắp xếp không gian trong từng khu vực chức năng.




Phong cách thiết kế căn hộ 50m2 được ưa chuộng nhất
Thiết kế nội thất căn hộ 50m2 ngày nay thường tập trung vào sự tinh gọn, tiện nghi và tạo cảm giác rộng rãi cho không gian sống. Tùy theo sở thích và nhu cầu, gia chủ có thể lựa chọn những phong cách thiết kế vừa đảm bảo thẩm mỹ vừa tối ưu công năng.
Phong cách hiện đại
Phong cách hiện đại được ưa chuộng nhờ sự linh hoạt trong bố trí và sử dụng nội thất. Các đường nét đơn giản, gam màu sáng cùng cách kết hợp ánh sáng tự nhiên giúp không gian như được mở rộng. Đặc biệt, phong cách này giúp căn hộ 50m2 luôn trông gọn gàng, tiện nghi. Đây là lựa chọn phổ biến cho cả gia đình trẻ lẫn người độc thân.

Phong cách tối giản
Phong cách tối giản tập trung vào việc loại bỏ chi tiết thừa, chỉ giữ lại những món đồ nội thất thật sự cần thiết. Nhờ vậy, căn hộ nhỏ 50m2 trở nên thoáng đãng và rộng rãi hơn nhiều so với diện tích thực tế. Thiết kế này còn giúp tối ưu chi phí và dễ dàng thay đổi bố cục khi cần. Đây là phong cách phù hợp với lối sống hiện đại, gọn gàng.

Phong cách Japandi
Japandi là sự kết hợp tinh tế giữa phong cách Nhật Bản và Bắc Âu, mang lại sự ấm áp, tự nhiên nhưng vẫn thanh lịch. Trong thiết kế căn hộ 50m2, Japandi phát huy ưu thế nhờ việc tận dụng gỗ tự nhiên, tông màu trung tính và ánh sáng nhẹ nhàng. Không gian vì thế vừa tiện nghi vừa thư giãn, phù hợp với người yêu thích sự cân bằng và giản dị.

Phong cách Wabi Sabi
Phong cách Wabi Sabi nhấn mạnh vẻ đẹp của sự mộc mạc, tự nhiên và không hoàn hảo. Khi áp dụng vào thiết kế nội thất chung cư 50m2, Wabi Sabi tạo nên một không gian gần gũi, tinh tế nhưng không kém phần nghệ thuật. Nội thất thường ưu tiên chất liệu tự nhiên, màu sắc trầm ấm giúp căn hộ nhỏ trở nên bình yên và thoải mái.

[BST Mẫu[ Thiết kế nội thất chung cư 50m2 đẹp, tiện nghi
Với nhiều năm kinh nghiệm trong lĩnh vực thiết kế thi công nội thất căn hộ, Bim Concept đã thực hiện thành công nhiều dự án lớn nhỏ, đặc biệt là dự án Sun Cosmo Residence Đà Nẵng với những căn hộ tối ưu công năng và thẩm mỹ vượt trội.
Mẫu thiết kế nội thất căn hộ 50m2 phong cách Tropical
Mẫu thiết kế nội thất căn hộ 50m2 phong cách Tropical mang đến không gian sống gần gũi thiên nhiên với gam màu gỗ ấm áp, điểm xuyết cây xanh tinh tế. Căn hộ được bố trí hợp lý gồm 1 phòng khách thoáng sáng, bếp tiện nghi và phòng ngủ +1 đáp ứng nhu cầu sinh hoạt linh hoạt. Sự kết hợp giữa chất liệu tự nhiên và ánh sáng hài hòa giúp không gian vừa hiện đại vừa thư giãn. Đây là lựa chọn lý tưởng cho gia chủ yêu thích sự thoáng mát và cảm giác nghỉ dưỡng trong chính ngôi nhà.
>>>Xem chi tiết dự án: SUN COSMO RESIDENCE – 48M2 – PHONG CÁCH TROPICAL
Mẫu thiết kế nội thất căn hộ 50m2 phong cách tối giản
Mẫu căn hộ 50m2 này được thiết kế theo phong cách tối giản nổi bật với gam màu trung tính và đường nét gọn gàng, tạo cảm giác rộng rãi và tinh tế. Không gian được bố trí khoa học gồm 1 phòng khách hiện đại, bếp tiện nghi và phòng ngủ +1 đáp ứng nhu cầu sinh hoạt linh hoạt. Nội thất được chọn lọc kỹ lưỡng, loại bỏ chi tiết thừa, chỉ giữ lại những yếu tố cần thiết. Nhờ vậy, căn hộ vừa thanh lịch vừa mang đến sự thoải mái cho gia chủ trong cuộc sống hàng ngày.
>>>Xem chi tiết dự án: SUN COSMO RESIDENCE – 48M2 – PHONG CÁCH TỐI GIẢN
Từ thực tiễn thi công, đội ngũ kiến trúc sư đã đúc kết nhiều giải pháp sáng tạo, phù hợp với diện tích vừa phải như 50m2. Để giúp gia chủ có thêm ý tưởng, dưới đây là BST mẫu thiết kế nội thất chung cư 50m2 đẹp, tiện nghi, mang đến không gian sống hiện đại và hài hòa.
Đơn giá thiết kế nội thất chung cư 50m2 tại Bim Concept
Chi phí luôn là yếu tố được nhiều gia chủ quan tâm khi bắt đầu triển khai thiết kế nội thất chung cư 50m2 . Tùy thuộc vào phong cách, vật liệu và mức độ hoàn thiện, đơn giá có sự thay đổi linh hoạt. Dưới đây là bảng giá tham khảo tại Bim Concept để bạn dễ dàng hình dung và lựa chọn.

Giải pháp tối ưu không gian cho căn hộ 50m2
Giải pháp tối ưu không gian cho căn hộ 50m2 luôn là yếu tố quan trọng giúp căn hộ nhỏ trở nên rộng rãi và tiện nghi hơn. Việc lựa chọn nội thất, bố trí mặt bằng và xử lý ánh sáng, màu sắc hợp lý sẽ quyết định đến trải nghiệm sống. Đây là những yếu tố không thể bỏ qua khi thực hiện thiết kế nội thất chung cư 50m2 hoặc thiết kế nội thất căn hộ dịch vụ.
Sử dụng nội thất đa năng
Nội thất đa năng là giải pháp thông minh giúp tiết kiệm diện tích mà vẫn đảm bảo đầy đủ công năng. Ví dụ như giường ngủ kết hợp tủ kéo, bàn ăn gấp gọn hoặc sofa bed vừa dùng tiếp khách vừa làm chỗ nghỉ ngơi. Trong thiết kế nội thất chung cư 50m2, nội thất đa năng sẽ giúp không gian gọn gàng, linh hoạt và dễ dàng thay đổi theo nhu cầu.

Bố trí không gian khoa học
Bố cục hợp lý giữa các khu vực chức năng giúp căn hộ nhỏ trở nên thông thoáng và tiện nghi hơn. Thông thường, phòng khách và bếp được thiết kế liền mạch theo không gian mở, tạo cảm giác rộng rãi. Phòng ngủ nên bố trí tách biệt, đảm bảo riêng tư nhưng vẫn thuận tiện di chuyển. Đây là nguyên tắc quan trọng trong thiết kế nội thất căn hộ dịch vụ và chung cư diện tích nhỏ.

Tối ưu ánh sáng và màu sắc
Ánh sáng tự nhiên kết hợp với gam màu sáng, trung tính sẽ giúp căn hộ 50m2 trở nên thoáng đãng và trông lớn hơn diện tích thực tế. Trong thiết kế căn hộ dịch vụ 50m2, việc tận dụng cửa sổ, gương và đèn chiếu sáng hợp lý mang lại hiệu ứng mở rộng không gian hiệu quả. Đồng thời, sự kết hợp hài hòa màu sắc và ánh sáng còn tạo nên cảm giác ấm cúng, thoải mái cho người sử dụng.

Một bản thiết kế nội thất chung cư 50m2 khoa học và thẩm mỹ sẽ giúp không gian sống của bạn trở nên tiện nghi, hiện đại và tối ưu công năng. Dù để ở hay cho thuê, việc đầu tư thiết kế nội thất luôn mang lại giá trị lâu dài và bền vững.
Nếu bạn đang tìm kiếm giải pháp phù hợp cho căn hộ của mình, hãy để Bim Concept đồng hành và biến ý tưởng thành hiện thực. Liên hệ ngay Bim Concept để được tư vấn và sở hữu không gian sống mơ ước nhé!
Thông tin liên hê:
HOTLINE: 0916.788.777
Fanpage: https://www.facebook.com/Thietkevathicongbimconcept

