Bản vẽ nội thất chung cư được xem là bước nền tảng quan trọng trong quá trình hoàn thiện không gian sống. Nhờ bản vẽ, gia chủ có thể hình dung rõ tổng thể căn hộ và kiểm soát tốt quá trình thi công, giúp mọi việc diễn ra thuận lợi, suôn sẻ và hạn chế tối đa chi phí phát sinh.
Bản vẽ thiết kế nội thất chung cư là gì?
Bản vẽ thiết kế nội thất chung cư là bản đồ họa chi tiết trên giấy, thể hiện từng hạng mục và không gian trong căn hộ. Để tạo nên bản vẽ thiết kế nội thất căn hộ này, kiến trúc sư và nhà thiết kế phải có chuyên môn vững vàng, kinh nghiệm dày dặn cùng gu thẩm mỹ tinh tế. Nhờ đó, đội ngũ thi công có thể lắp đặt và bố trí nội thất một cách chính xác, nhanh gọn và đồng bộ với ý tưởng ban đầu.

Một số mẫu bản vẽ nội thất chung cư đẹp do Bim Concept thiết kế
Dưới đây là một số mẫu bản vẽ nội thất chung cư đẹp, hiện đại, tối ưu diện tích và công năng do Bim Concept thiết kế mà bạn có thể tham khảo và áp dụng cho không gian căn hộ chung cư của mình:
Bản vẽ nội thất chung cư mini phong cách hiện đại
Căn hộ 1 phòng ngủ tiện nghi được đội ngũ Bim Concept lên ý tưởng sau quá trình khảo sát hiện trạng và lắng nghe nhu cầu của gia chủ. Dù diện tích hạn chế, nhưng từng khoảng không đều được tận dụng khéo léo để sắp xếp nội thất hài hòa, tạo nên không gian sống gọn gàng mà vẫn thoáng rộng, thoải mái.
>>> Tham khảo chi tiết: Phối cảnh 3D chung cư 35m2 hiện đại
Bản thiết kế nội thất chung cư mini 35m2 sang trọng
Căn hộ mini 35m2 được thiết kế tinh gọn nhưng vẫn toát lên vẻ sang trọng nhờ cách bố trí khoa học. Phòng ngủ ấm cúng, góc làm việc gọn gàng cùng ban công thoáng sáng tạo nên sự cân bằng hài hòa giữa riêng tư và thoải mái. Mỗi chi tiết nội thất đều được kiến trúc sư chăm chút, mang đến cảm giác rộng rãi vượt ngoài diện tích thực.
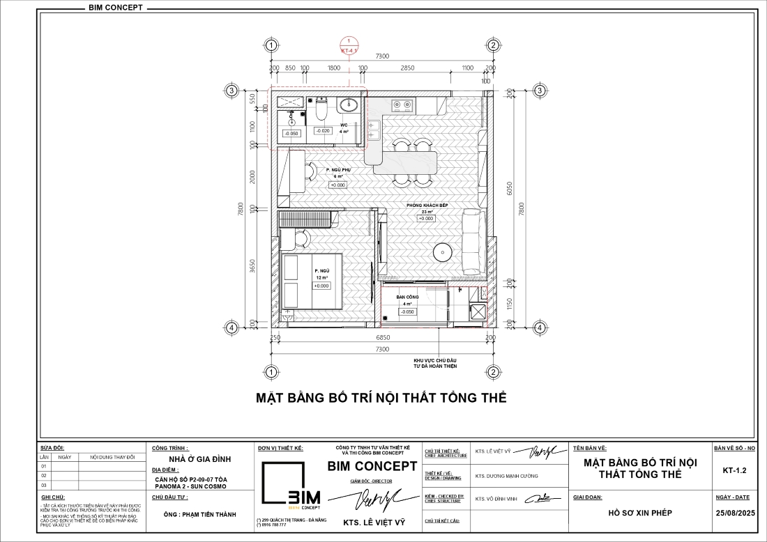
Bản vẽ thiết kế nội thất chung cư mini 35m2 tối giản
Bản vẽ nội thất chung cư mini 35m2 này thể hiện rõ nét tư duy phác thảo tinh tế của kiến trúc sư. Từng món đồ nội thất được sắp đặt khoa học, từ phòng ngủ đón sáng tự nhiên cho đến khu bếp và vệ sinh gọn gàng, đảm bảo công năng và sự thông thoáng. Chính sự tối giản trong bố cục đã tạo nên một tổng thể hiện đại, mạch lạc và đầy tính thực tiễn.

>>> Tham khảo chi tiết: Phối cảnh 3D chung cư 35m2 tối giản
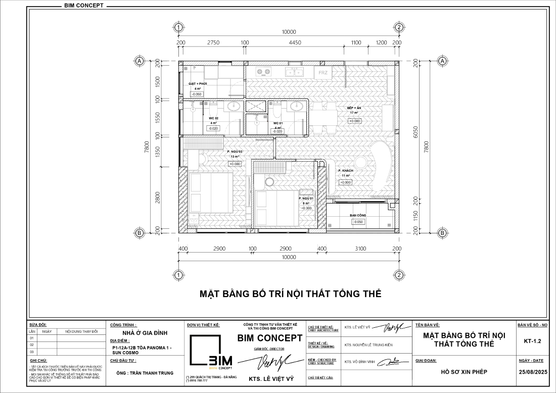
Bản vẽ thiết kế nội thất chung cư 2 phòng ngủ
Bản vẽ nội thất chung cư 2 phòng ngủ được thiết kế tiện nghi với bố cục gọn gàng, hợp lý, tận dụng tối đa diện tích. Không gian khách bếp liên thông tạo sự liền mạch, vừa tiết kiệm không gian vừa mang lại cảm giác rộng rãi, thoáng đãng. Mỗi khu vực đều được kiến trúc sư Bim Concept tính toán kỹ lưỡng, đảm bảo tổng thể cân bằng, hài hòa và đáp ứng trọn vẹn nhu cầu sinh hoạt của gia chủ.
>>> Tham khảo chi tiết: Phối cảnh 3D chung cư 2 phòng ngủ
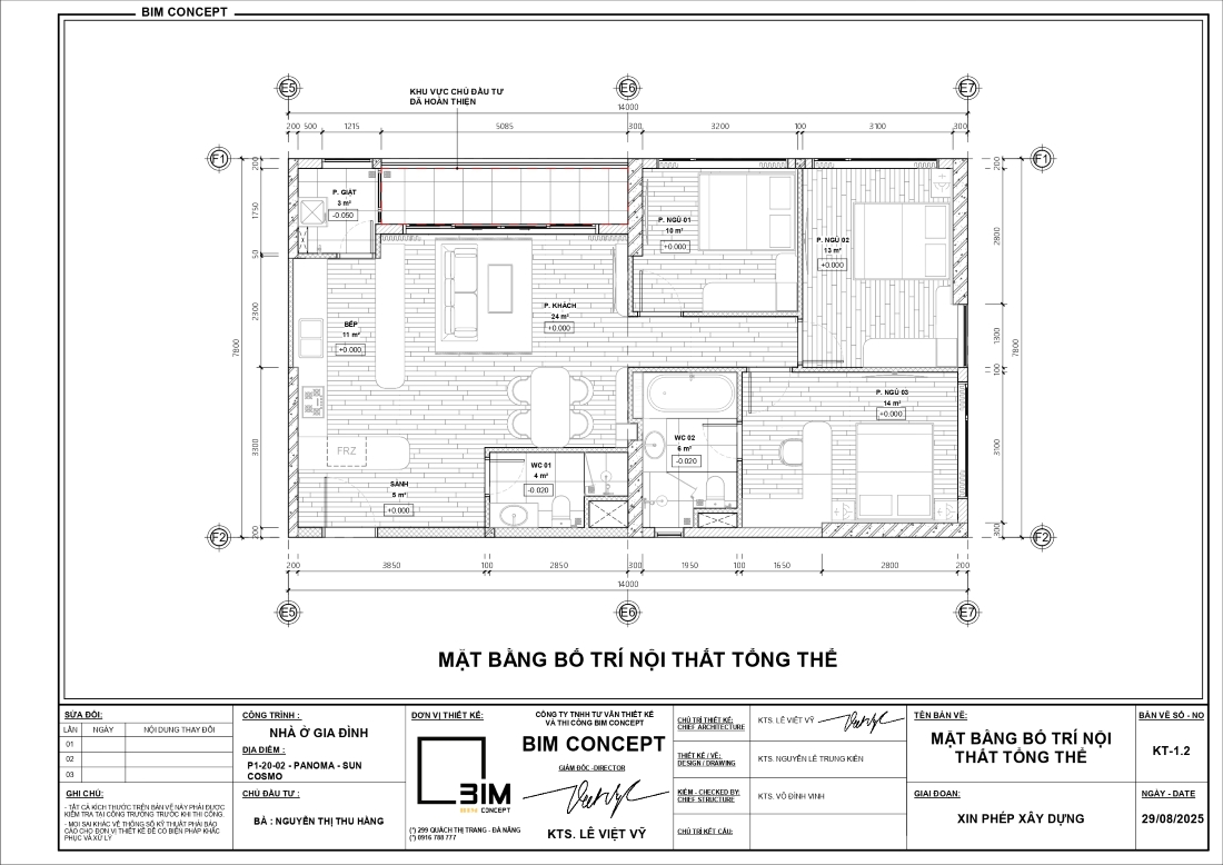
Bản vẽ thiết kế nội thất chung cư 3 phòng ngủ
Bản vẽ nội thất chung cư nổi này nổi bật với cách nố trí khoa học, không gian khách bếp bố trí liên mạch thoáng đãng. Bên cạnh đó, ba phòng ngủ được sắp xếp hợp lý, khéo léo đảm bảo sự riêng tư cho gia chủ. Mỗi chi tiết đều được Bim Concept tính toán kỹ lưỡng để mang lại tổng thể cân bằng và tiện nghi cho gia chủ.
>>> Tham khảo chi tiết: Phối cảnh 3D chung cư 3 phòng ngủ
Lợi ích khi có bản vẽ thiết kế nội thất chung cư
Bản vẽ nội thất chung cư giống như bản đồ chỉ đường giúp cho quá trình thi công lắp đặt nội thất diễn ra suôn sẻ và mượt mà. Vì thế, nó vừa giúp định hình không gian sống và mang lại nhiều lợi ích thiết thực như:
- Định hình ý tưởng rõ ràng: Bản vẽ thiết kế nội thất chung cư giúp gia chủ dễ dàng hình dung cách bố trí không gian, màu sắc và chất liệu. Nhờ đó, mọi điều chỉnh cần thiết có thể thực hiện ngay từ đầu, tránh sai sót khi bước vào thi công.
- Tiết kiệm thời gian và chi phí: Bản vẽ thiết kế nội thất chung cư giúp gia chủ ước lượng trước ngân sách hợp lý, đồng thời rút ngắn thời gian lựa chọn nội thất. Nhờ đó, quá trình thi công diễn ra suôn sẻ và hạn chế tối đa chi phí phát sinh.
- Dễ dàng điều chỉnh: Vì chỉ là bản phác thảo nên gia chủ có thể thay đổi, chỉnh sửa linh hoạt cho đến khi thật sự hài lòng. Điều này giúp tránh cảm giác không như mong muốn sau khi thi công hoàn tất.
- Hỗ trợ thi công chuẩn xác: Đội ngũ thi công dựa trên bản vẽ nội thất chung cư để dễ dàng trong việc bố trí và lắp đặt nội thất theo đúng chuẩn và bám sát ý tưởng ban đầu.
- Cân đối màu sắc và không gian: Bản vẽ giúp gia chủ dễ dàng hình dung được tổng quát màu sắc ngôi nhà, tránh phối màu lộn lộn, thiếu sự cân đối.

Thiết kế nội thất căn hộ 35m2 tối ưu không gian
Quy trình để tạo bản vẽ thiết kế nội thất chung cư hiện nay
Để hoàn thiện một bản vẽ nội thất chung cư chi tiết và trọn vẹn, các công ty thiết kế thường triển khai theo quy trình gồm nhiều bước cụ thể sau đây:
Tiến hành khảo sát căn hộ
Để bắt đầu quá trình thiết kế bản vẽ nội thất, kiến trúc sư cần khảo sát thực tế căn hộ nhằm nắm rõ hiện trạng không gian. Công việc này giúp xác định chính xác diện tích tổng thể, diện tích từng khu vực, lối di chuyển giữa các phòng cũng như yếu tố môi trường xung quanh.

Thiết kế mặt bằng căn hộ chung cư
Ở bước này, kiến trúc sư sẽ phác họa cách sắp xếp các món đồ nội thất như sofa, bàn trà, giường ngủ, tủ quần áo hay kệ sách… sao cho phù hợp với từng không gian. Bản vẽ bố trí mặt bằng giúp gia chủ dễ dàng hình dung toàn cảnh căn hộ, nắm rõ khu vực nào cần những vật dụng gì, từ đó có thể cân nhắc bổ sung hoặc lược bớt để đạt sự cân đối tối ưu.

Triển khai bản vẽ chi tiết
Ở giai đoạn này, bản vẽ được hoàn thiện bằng việc bổ sung chi tiết cụ thể cho từng món nội thất như màu sắc, kích thước và kiểu dáng. Nhờ vậy, hình ảnh trở nên sống động đến mức người chưa quen có thể lầm tưởng đây là những bức ảnh chụp căn hộ thực tế, chứ không phải bản vẽ triển khai trên giấy.

Một số lưu ý khi thiết kế bản vẽ thiết kế nội thất chung cư
Để bản vẽ nội thất chung cư thực sự phát huy hết giá trị, gia chủ cần lưu ý đến một vài yếu tố quan trọng trong quá trình thiết kế. Đây là những điểm mấu chốt giúp không gian được tối ưu, thi công thuận lợi và đảm bảo tính thẩm mỹ lâu dài:
Bản vẽ thiết kế chung cư chi tiết
Một bản vẽ chi tiết là nền tảng để quá trình thi công diễn ra chính xác và hiệu quả. Nó thể hiện rõ cách bố trí nội thất, kích thước, màu sắc và vật liệu, giúp gia chủ dễ hình dung không gian thực tế. Nhờ vậy, mọi hạng mục đều được triển khai đồng bộ, hạn chế tối đa sai sót và phát sinh.
Tuy nhiên trong quá trình phác thảo đòi hỏi cần phải đảm bảo thể hiện toàn bộ thông tin về vật lịch, kích thước, thông số kỹ thuật, diện tích và chi phí toàn bộ căn chung cư.

Đảm bảo về tính nhất quán
Sự nhất quán trong thiết kế giúp căn hộ hài hòa từ tổng thể đến chi tiết. Màu sắc, ánh sáng, vật liệu và kiểu dáng nội thất cần được phối hợp chặt chẽ theo một phong cách chủ đạo. Điều này không chỉ mang lại vẻ đẹp thẩm mỹ mà còn tạo cảm giác liền mạch, gọn gàng và chuyên nghiệp cho toàn bộ không gian.
Chọn lựa đơn vị thiết kế chuyên nghiệp
Một đơn vị thiết kế bản vẽ nội thất chung cư uy tín sẽ giúp gia chủ hiện thực hóa ý tưởng một cách khoa học và hiệu quả. Với kinh nghiệm và chuyên môn, các kiến trúc sư/ nhân viên thiết kế của công ty có thể tư vấn giải pháp phù hợp, đồng thời đồng hành xuyên suốt từ bản vẽ đến thi công để đảm bảo chất lượng.

Hiện nay, dịch vụ thiết kế và thi công nội thất căn hộ của Bim Concept đang nhận được sự tin tưởng từ nhiều gia chủ. Với hàng loạt dự án đã được hoàn thiện, đội ngũ Bim Concept đã khẳng định được tay nghề, gu thẩm mỹ và khả năng sáng tạo vượt trội. Bạn có thể ghé thăm website bimconcept.com.vn để tham khảo những công trình thiết kế nổi bật. Nếu mong muốn sở hữu một bản vẽ nội thất chung cư đẹp, chuẩn ý, hãy liên hệ ngay với chúng tôi để được tư vấn và hỗ trợ, giúp hành trình kiến tạo căn hộ mơ ước của bạn trở nên dễ dàng và suôn sẻ hơn.
