Nhà cấp 4 chữ L mái tôn là lựa chọn thông minh cho nhiều gia đình nhờ khả năng tiết kiệm chi phí và tối ưu không gian sử dụng. Mái tôn vừa có giá thành hợp lý, vừa dễ thi công, trong khi thiết kế chữ L tối ưu diện tích. Chính vì vậy, mẫu nhà cấp 4 chữ L mái tôn đang trở nên ưa chuộng và phổ biến hiện nay. Hãy tham khảo nội dung dưới đây để có thêm những gợi ý độc đáo và mới mẻ dành cho riêng mình nhé!
Đặc điểm của nhà cấp 4 chữ L mái tôn
Mẫu nhà cấp 4 chữ L mái tôn không chỉ mang lại sự tiết kiệm chi phí mà còn đáp ứng tốt nhu cầu sử dụng linh hoạt của nhiều gia đình. Dưới đây là một số đặc điểm nổi bật mà bạn nên tham khảo:
- Thiết kế chữ L thông minh: Giúp tận dụng tối đa diện tích đất, tạo khoảng sân thoáng và dễ dàng phân chia các không gian chức năng.
- Mái tôn tiết kiệm chi phí: Giá thành rẻ, thi công nhanh, phù hợp với nhiều gia đình muốn xây nhà kinh tế nhưng vẫn đảm bảo thẩm mỹ.
- Công năng linh hoạt: Không gian bên trong dễ bố trí, có thể mở rộng thêm phòng hoặc khu sinh hoạt chung tùy theo nhu cầu sử dụng.

Mẫu nhà cấp 4 chữ L mái tôn lệch mái ấn tượng
Ưu điểm của nhà cấp 4 chữ L mái tôn
Nhà cấp 4 chữ L mái tôn ngày càng được nhiều gia đình lựa chọn nhờ những ưu thế nổi bật về chi phí, công năng và tính thẩm mỹ. Một số ưu điểm có thể kể đến như sau:
- Tiết kiệm chi phí xây dựng: Mái tôn có giá thành rẻ hơn nhiều so với ngói hoặc bê tông, thi công nhanh chóng, phù hợp với ngân sách của đa số gia đình.
- Thời gian thi công nhanh: Nhờ kết cấu đơn giản và sử dụng mái tôn dễ lắp đặt, quá trình xây dựng nhà cấp 4 chữ L được rút ngắn đáng kể.
- Tối ưu diện tích xây dựng: Với thiết kế chữ L thông minh, ngôi nhà dễ dàng tận dụng tối đa diện tích đất. Kiểu bố cục này còn giúp phân chia không gian hợp lý, tạo khoảng sân hoặc lối đi thoáng đãng, thuận tiện cho sinh hoạt gia đình.
- Kiểu dáng đa dạng, hiện đại: Có thể thiết kế từ phong cách đơn giản đến sang trọng, dễ kết hợp với sân vườn, hiên nhà hoặc gara.

Nhà cấp 4 chữ L mái tôn hiện đại
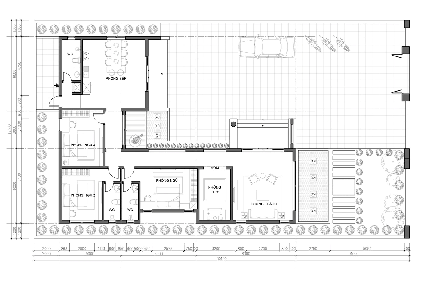
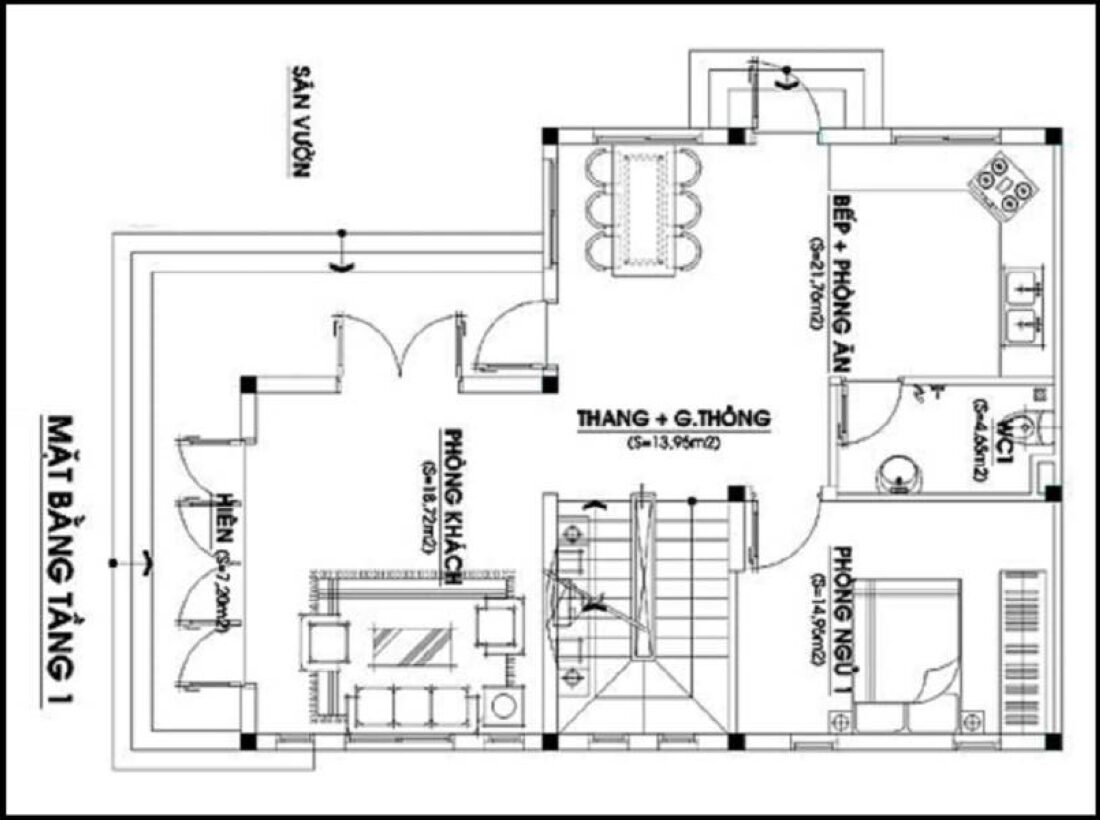
Bản vẽ nhà cấp 4 chữ L mái tôn
Bản vẽ là cơ sở quan trọng giúp gia chủ hình dung tổng thể ngôi nhà, bố trí không gian hợp lý và ước lượng chi phí. Nhờ đó, việc thiết kế và thi công trở nên chính xác, tối ưu diện tích và công năng sử dụng. Hãy tham khảo các mẫu bản vẽ nhà cấp 4 chữ L mái tôn chuẩn xác, ấn tượng dưới đây:






>>> Có thể tham khảo thêm: 1000+ Mẫu mặt tiền nhà cấp 4 đẹp, hợp xu hướng
Tổng hợp các mẫu nhà cấp 4 chữ L mái tôn siêu đẹp
Mẫu nhà cấp 4 chữ l mái tôn đơn giản
Nhà cấp 4 mái tôn dạng chữ L với phong cách tối giản phù hợp với những gia chủ thích sự đơn giản, không cầu kỳ. Ngôi nhà thường sử dụng các đường nét gọn gàng, hạn chế chi tiết phức tạp để tiết kiệm chi phí mà vẫn đảm bảo tính thẩm mỹ. Mái tôn được lựa chọn nhờ đặc tính nhẹ, dễ thi công và độ bền cao, giúp giảm tải trọng cho công trình và tối ưu ngân sách xây dựng.

Mẫu nhà cấp 4 mái tôn hiện đại
Những thiết kế hiện đại của nhà cấp 4 chữ L mái tôn gây ấn tượng bởi hình khối gọn gàng, phối màu tinh tế và không gian mở thoáng sáng. Các mảng kính lớn, kết hợp cùng mái tôn màu sắc trẻ trung, mang lại vẻ đẹp vừa đơn giản vừa sang trọng.

Nhà cấp 4 chữ l ở nông thôn
Mẫu nhà chữ L mái tôn ở nông thôn mang vẻ đẹp gần gũi, hài hòa với không gian xanh mát của đồng quê. Thiết kế chú trọng sự thoáng đãng, có khoảng sân rộng rãi thuận tiện cho sinh hoạt và trồng trọt. Vật liệu mái tôn nhẹ, chi phí hợp lý giúp gia đình dễ dàng sở hữu một tổ ấm bền đẹp và tiết kiệm.

Mẫu nhà chữ l mái tôn 2 phòng ngủ
Thiết kế 2 phòng ngủ trong nhà cấp 4 chữ L mái tôn mang lại sự tiện nghi cho gia đình nhỏ hoặc các cặp vợ chồng trẻ. Cách bố trí thông minh giúp các phòng đều thông thoáng, tách biệt vừa đủ để đảm bảo sự riêng tư.

Mẫu nhà chữ L mái tôn 3 phòng ngủ
Thiết kế 3 phòng ngủ trong nhà chữ L mái tôn đáp ứng tốt nhu cầu của gia đình đông người hoặc nhiều thế hệ cùng chung sống. Các phòng được bố trí hợp lý, vừa tạo sự riêng tư, vừa giữ được sự kết nối giữa các thành viên.

>>> Có thể tham khảo thêm: 25+ Mẫu nhà cấp 4 3 phòng ngủ 300 triệu đẹp, ấn tượng
Nhà cấp 4 chữ L mái tôn sân vườn
Với không gian sân vườn kết hợp cùng thiết kế chữ L tạo nên sự gắn kết hài hòa giữa ngôi nhà và thiên nhiên. Mái tôn nhẹ, bền màu cùng khoảng sân xanh mát mang đến cảm giác thư giãn và thoáng đãng.

Nhà cấp 4 chữ L mái tôn giả ngói
Sự kết hợp giữa mái tôn giả ngói và thiết kế chữ L mang đến vẻ ngoài bền chắc nhưng vẫn giữ được nét thẩm mỹ truyền thống. Mái tôn giả ngói nhẹ, thi công nhanh, lại tạo cảm giác sang trọng như mái ngói thật.

Nhà cấp 4 chữ L mái tôn kết hợp gara
Với thiết kế chữ L, khoảng trống được tận dụng làm gara, rất thuận tiện cho gia đình có phương tiện đi lại. Không chỉ đảm bảo an toàn, gara còn giúp xe tránh mưa nắng hiệu quả. Thông thường, khu vực này được bố trí liền kề hiên nhà, vừa dễ di chuyển vừa tạo sự gọn gàng cho tổng thể kiến trúc.

Mẹo xây dựng nhà cấp 4 chữ L mái tôn tiết kiệm chi phí
Để sở hữu một ngôi nhà cấp 4 chữ L mái tôn vừa đẹp vừa tiện nghi, quá trình xây dựng cần có sự tính toán kỹ lưỡng. Dưới đây, Bim Concept chia sẻ những mẹo giúp bạn tối ưu chi phí nhưng vẫn đảm bảo công năng và tính thẩm mỹ cho ngôi nhà của mình.
Lập kế hoạch và chuẩn bị tài chính
Trước khi xây dựng, gia chủ cần tính toán rõ ràng diện tích, phong cách thiết kế và cũng như chi phí dự kiến. Việc lên kế hoạch cụ thể giúp kiểm soát ngân sách, tránh phát sinh không cần thiết và đảm bảo tiến độ thi công.

Lựa chọn mái tôn chất lượng, bền, chống nóng tốt
lựa chọn mái tôn chất lượng là yếu tố quan trọng quyết định độ bền và sự thoải mái của ngôi nhà. Gia chủ nên chọn loại tôn có khả năng cách nhiệt, chống ồn và độ bền cao để vừa tiết kiệm chi phí lâu dài vừa giữ được tính thẩm mỹ.

Bố trí công năng hợp lý theo nhu cầu gia đình
Việc sắp xếp phòng khách, bếp, phòng ngủ và nhà vệ sinh khoa học sẽ giúp tối ưu diện tích và mang lại sự tiện lợi trong sinh hoạt. Phòng ngủ nên đặt ở vị trí cân bằng, tránh phần khuyết của chữ L để đảm bảo giấc ngủ sâu và năng lượng tốt. Trong khi đó, phòng ăn nên thiết kế ở nơi ấm cúng nhằm tăng sự gắn kết giữa các thành viên.

Chú ý xử lý khuyết điểm góc
Kiểu nhà chữ L thường tạo ra góc khuyết, dễ ảnh hưởng đến phong thủy hoặc thẩm mỹ. Gia chủ có thể khắc phục bằng cách bố trí tiểu cảnh, cây xanh hoặc gara để không gian hài hòa và cân đối hơn.

Lựa chọn đơn vị thi công uy tín
Một đội ngũ có kinh nghiệm sẽ đảm bảo công trình bền đẹp, đúng bản vẽ và đúng tiến độ. Đồng thời, đơn vị uy tín cũng giúp tư vấn giải pháp tiết kiệm chi phí nhưng vẫn đảm bảo chất lượng và tính thẩm mỹ.

Nếu những mẫu nhà cấp 4 chữ L mái tôn trong bài viết đã truyền cảm hứng cho bạn, hãy để Bim Concept biến ý tưởng đó thành hiện thực. Với hơn 7 năm kinh nghiệm và hàng loạt công trình đã hoàn thiện, chúng tôi cam kết mang đến một không gian sống không chỉ đẹp, mà còn tối ưu công năng, phù hợp với nhu cầu và phong cách riêng của bạn. Hãy liên hệ với Bim Concept ngay hôm nay để được tư vấn chi tiết và bắt đầu hành trình xây dựng ngôi nhà dành riêng cho bạn nhé!
>> > Tham khảo thêm:
