Thiết kế phòng ngủ có toilet đang trở thành xu hướng lý tưởng cho không gian vừa và lớn, vừa thuận tiện cho việc vệ sinh cá nhân vừa đảm bảo sự riêng tư. Tuy nhiên, việc sắp xếp sao cho hài hòa phong thủy, tránh ảnh hưởng sinh hoạt chung lại đòi hỏi sự khéo léo, tinh tế. Bim Concept mang đến bộ sưu tập mẫu thiết kế độc đáo, đẹp mắt và chuẩn mực phong thủy nhất, giúp bạn dễ dàng lấy cảm hứng cho căn phòng ngủ của mình.
Có nên xây nhà vệ sinh trong phòng ngủ?
Nếu bạn sở hữu một căn phòng ngủ 12m2 trở lên thì suy xét nên tích hợp thêm nhà vệ sinh, giúp tiết kiệm thời gian di chuyển, đặc biệt tiện lợi vào ban đêm hoặc những gia đình có người lớn tuổi. Không gian riêng tư này cũng tạo cảm giác thoải mái, phù hợp với lối sống hiện đại. Việc bố trí thêm không gian vệ sinh mang lại nhiều lợi ích sau:
- Tăng tính tiện nghi: Có toilet ngay trong phòng giúp bạn dễ dàng đáp ứng nhu cầu cá nhân mà không cần rời khỏi không gian nghỉ ngơi, đặc biệt lý tưởng cho các cặp vợ chồng hoặc phòng ngủ master.
- Đảm bảo sự riêng tư: Toilet khép kín tạo ra một không gian độc lập, giúp bạn thoải mái hơn, đặc biệt trong các gia đình đông thành viên hoặc có khách ghé thăm.
- Nâng giá trị ngôi nhà: Phòng ngủ có nhà vệ sinh riêng thường được đánh giá cao hơn về mặt tiện ích và thẩm mỹ, tăng sức hút cho ngôi nhà nếu bạn muốn bán hoặc cho thuê.
- Phù hợp với người lớn tuổi: Với những gia đình có người cao tuổi, toilet trong phòng ngủ giúp giảm thiểu rủi ro khi di chuyển, đặc biệt vào ban đêm.

Tuy nhiên, cần lưu ý một số điểm để tránh bất tiện. Nhà vệ sinh cần được thiết kế thông thoáng, có hệ thống hút mùi tốt để đảm bảo vệ sinh và không ảnh hưởng đến không gian nghỉ ngơi. Về phong thủy, nên tránh đặt nhà vệ sinh đối diện giường ngủ hoặc cửa ra vào để không làm xáo trộn luồng năng lượng tích cực. Nếu phòng ngủ quá nhỏ (dưới 15m²), việc xây nhà vệ sinh có thể khiến không gian chật chội, gây cảm giác bí bách.
>>>Tham khảo: 100+ Mẫu thiết kế nội thất Đà Nẵng đẹp nhất [kèm báo giá]
Diện tích phòng ngủ thích hợp để xây nhà vệ sinh
Việc xây nhà vệ sinh khép kín trong phòng ngủ là ý tưởng tuyệt vời để tăng tiện nghi, nhưng diện tích phòng bao nhiêu thì phù hợp? Dưới đây là hướng dẫn ngắn gọn, dễ hiểu để bạn cân nhắc:
- Phòng ngủ từ 12 – 15m2: Phù hợp với phòng ngủ nhỏ, nhưng toilet cần thiết kế gọn (khoảng 2 – 3m2). Đặt ở góc phòng để tiết kiệm không gian, ưu tiên bố trí đơn giản với bồn cầu, lavabo và vòi sen.
- Phòng ngủ từ 15 – 20m2: Diện tích lý tưởng cho phòng ngủ đôi hoặc master. Toilet có thể rộng hơn (3 – 4m2), đủ chỗ cho các tiện ích cơ bản mà vẫn giữ phòng ngủ thoáng đãng.
- Phòng ngủ trên 20m2: Thoải mái bố trí toilet rộng rãi (4 – 6m2), thậm chí thêm bồn tắm thông minh hoặc các chi tiết sang trọng. Không gian vẫn đảm bảo thẩm mỹ và tiện nghi.

Tổng hợp bản vẽ phòng ngủ có toilet ấn tượng nhất
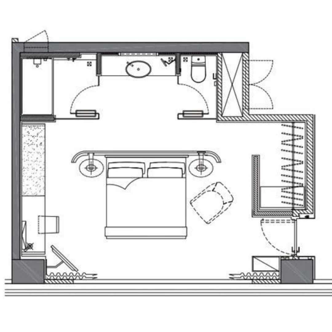
Bản vẽ mặt bằng phòng ngủ có toilet giúp bạn dễ dàng hình dung bố cục tổng thể, từ khu vực nghỉ ngơi đến không gian toilet, cùng cách sắp xếp nội thất chi tiết. Đây là công cụ hữu ích để thi công chính xác, đồng thời cho phép bạn tùy chỉnh theo sở thích, đảm bảo sự tiện nghi, thẩm mỹ và hợp phong thủy. Dưới đây là một số mẫu bản vẽ nổi bật để bạn tham khảo:




BST Mẫu phòng ngủ có toilet đẹp, tối ưu diện tích nhất
Mẫu phòng ngủ 12m2 phong cách tối giản hiện đại
Thiết kế sử dụng gam màu trung tính (trắng, xám, be) để tạo cảm giác rộng rãi. Toilet chiếm 2 – 3m2 ở góc phòng, chỉ lắp bồn cầu, lavabo và vòi sen đứng gọn gàng. Giường ngủ có hộc tủ đa năng, tủ quần áo âm tường, giúp tối ưu lưu trữ mà không lấn diện tích.

Mẫu phòng ngủ 15m2 với toilet tích hợp thông minh
Mẫu phòng dành 3 – 4m2 cho toilet với kệ treo tường và gương tích hợp lưu trữ. Phòng ngủ bố trí giường bệt, bàn làm việc gấp gọn và kệ sách treo. Màu sắc pastel nhẹ nhàng, ánh sáng tự nhiên từ cửa sổ nhỏ tăng sự thoáng đãng.

Mẫu phòng ngủ master 16m2 sang trọng kiểu Hàn Quốc
Toilet của phòng ngủ khoảng 3m2 với gạch ốp họa tiết tinh tế, lavabo đôi và vòi sen kính. Giường lớn đặt trung tâm, tủ quần áo cao sát trần. Sử dụng rèm kéo ngăn toilet để linh hoạt không gian.

Mẫu phòng ngủ 18m2 đa năng cho gia đình trẻ
Toilet 4m2 ở cuối phòng, tích hợp bồn tắm đứng nhỏ và hệ thống thông gió tốt. Giường đôi với ngăn kéo, góc làm việc kết hợp kệ TV treo tường. Thiết kế tối ưu bằng cách dùng vách ngăn di động, dễ dàng mở rộng không gian khi cần.

Mẫu phòng ngủ 20m2 hiện đại với cửa kính tiết kiệm
Phòng ngủ có toilet 4m2 vuông góc với cửa phòng, dùng cửa kính trong suốt để giữ sự thoáng. Nội thất trắng tinh khiết, giường lớn và bàn trang điểm liền kề. Tối ưu diện tích nhờ cửa sổ lớn đón nắng, giảm cảm giác chật chội.

Mẫu phòng ngủ nhỏ 12-15m2 cho trẻ em
Mẫu phòng ngủ có toilet khoảng 2m2 với họa tiết hoạt hình dễ thương, bồn cầu nhỏ và lavabo thấp. Giường tầng có ngăn kéo, kệ sách treo tường. Màu sắc tươi sáng, tối ưu bằng nội thất nhỏ gọn để trẻ dễ tiếp cận.

Mẫu phòng ngủ 15m2 Bắc Âu thanh lịch
Phòng ngủ sử dụng giường gỗ sáng, tủ âm tường và đèn treo dịu nhẹ. Thiết kế tận dụng ánh sáng tự nhiên, tối ưu lưu trữ bằng kệ đa tầng. Toilet của phòng có diện tích khoảng 3m2 với vách kính mờ hoặc gạch sáng màu.

Mẫu phòng ngủ 20m2 sang trọng cho người trung niên
Phòng ngủ với diện tích toilet khoảng 5m2 có bồn tắm jacuzzi nhỏ, lavabo đôi và quạt thông gió. Giường king-size, ghế sofa mini và tủ kính trưng bày. Tối ưu bằng bố trí tuyến tính, tiết kiệm 15% diện tích di chuyển.

Mẫu phòng ngủ lớn 25m2 cao cấp
Phòng ngủ có toilet từ 5 – 6m2 với đầy đủ tiện ích (bồn tắm, sauna mini). Giường lớn, khu vực đọc sách riêng và tủ quần áo cánh kính. Tối ưu bằng phân khu rõ ràng, sử dụng ánh sáng LED điều chỉnh.

Mẫu phòng ngủ 16m2 tối ưu cho chung cư
Đối với những thiết kế chung cư, phòng ngủ có toilet thường diện tích từ 3m2 đến 4m2 gần cửa sổ nhỏ để thông thoáng. Nội thất thông minh như giường gấp và bàn làm việc ẩn. Màu be trung tính, tối ưu bằng cách dồn nội thất về một bên phòng.

>>>Gợi ý cho bạn: 160+ Mẫu bản vẽ nội thất chung cư đẹp, chuẩn xu hướng 2025
Nguyên tắc bố trí phòng ngủ có toilet hợp phong thủy
Dưới đây là các nguyên tắc phong thủy bạn nên biết để bố trí phòng ngủ có toilet hài hòa, mang lại năng lượng tích cực và sức khỏe cho gia chủ:
Tránh đặt toilet đối diện giường ngủ hoặc cửa ra vào
Vị trí toilet ảnh hưởng lớn đến luồng khí trong phòng. Đặt toilet đối diện giường ngủ hoặc cửa ra vào có thể làm thoát khí tốt, gây bất an và ảnh hưởng sức khỏe. Thay vào đó, bố trí toilet ở góc phòng hoặc khu vực khuất, sử dụng vách ngăn hoặc cửa kín để tách biệt không gian, giữ năng lượng tích cực.

Đảm bảo toilet luôn sạch sẽ và thông thoáng
Toilet là khu vực mang năng lượng âm, dễ tích tụ khí xấu nếu không được vệ sinh thường xuyên. Giữ toilet khô ráo, sạch sẽ và lắp đặt hệ thống thông gió hoặc cửa sổ nhỏ để không khí lưu thông. Điều này giúp giảm thiểu năng lượng tiêu cực, tạo không gian nghỉ ngơi thoải mái và an lành.

Sử dụng cửa hoặc vách ngăn kín đáo
Để ngăn năng lượng âm từ toilet ảnh hưởng đến phòng ngủ, hãy sử dụng cửa kín hoặc vách ngăn chắc chắn. Cửa trượt hoặc vách kính mờ là lựa chọn hiện đại, vừa đảm bảo phong thủy, vừa tăng tính thẩm mỹ. Tránh để cửa toilet mở thường xuyên để giữ sự riêng tư và cân bằng năng lượng.

Bố trí giường ngủ hợp lý
Giường ngủ nên được đặt ở vị trí “tọa cát hướng cát” (vị trí tốt theo phong thủy), tránh hướng thẳng vào toilet. Đầu giường không nên tựa vào tường chung với toilet để tránh cảm giác bất an. Nếu không gian hạn chế, sử dụng rèm hoặc bình phong để che chắn, tạo sự cân bằng trong bố cục.

Chọn hướng nhà vệ sinh
Nên chọn hướng Tây Bắc, Tây, Nam hoặc Đông Bắc cho nhà vệ sinh trong phòng ngủ master. Điều này giúp tạo ra sự cân bằng và ổn định năng lượng trong không gian phòng ngủ. Tránh đặt nhà vệ sinh theo hướng Đông Nam, Đông, Bắc hoặc Tây Nam để tránh phản ứng tiêu cực từ năng lượng.

Chọn màu sắc và ánh sáng hài hòa
Màu sắc phòng ngủ và toilet nên nhẹ nhàng, như tông trắng, pastel hoặc be, để tạo cảm giác thư giãn và cân bằng năng lượng. Ánh sáng tự nhiên hoặc đèn dịu nhẹ trong cả hai khu vực giúp kích hoạt khí tốt. Tránh ánh sáng quá gắt trong toilet để không làm mất đi sự ấm cúng của phòng ngủ.

Cách hóa giải phong thủy xấu cho phòng ngủ có toilet
Phòng ngủ có toilet khép kín cần được bố trí cẩn thận theo phong thủy để mang lại năng lượng tích cực và sức khỏe cho gia chủ. Nếu chẳng may bố trí sai, bạn hãy tham khảo là các cách hóa giải dưới đây nhé:
- Dùng rèm hoặc vách ngăn: Sử dụng rèm dày, vách gỗ hoặc kính mờ để tách biệt giường ngủ và toilet, ngăn năng lượng âm, tăng tính riêng tư và thẩm mỹ.
- Sắp xếp lại giường hoặc treo tranh: Đổi hướng giường để tránh đối diện toilet hoặc tựa vào tường chung. Treo tranh cảnh núi, biển gần giường để kích hoạt năng lượng tích cực, tạo cảm giác thư giãn.
- Đặt cây xanh trong toilet: Bố trí cây lưỡi hổ, trầu bà trong toilet để hút ẩm, thanh lọc không khí, giảm khí xấu và làm không gian tươi mới.
- Giữ toilet sạch sẽ, thông thoáng: Vệ sinh toilet thường xuyên, đóng cửa khi không dùng. Lắp quạt thông gió hoặc cửa sổ nhỏ để tránh ẩm mốc, giữ không gian trong lành.
- Sử dụng gương và vật phẩm phong thủy: Treo gương lớn trong toilet hoặc gương bát quái ngoài cửa để trấn áp khí xấu. Đặt hồ lô ở đầu giường để hóa giải sát khí, bảo vệ sức khỏe.
- Tối ưu công năng và tiết kiệm diện tích: Toilet khép kín mang lại sự riêng tư, tiện lợi, đặc biệt phù hợp với lối sống hiện đại. Thiết kế này tiết kiệm diện tích, đáp ứng nhu cầu sinh hoạt nhanh chóng.

Với các mẫu thiết kế phòng ngủ có toilet, bạn dễ dàng tạo không gian tiện nghi, thẩm mỹ và chuẩn phong thủy. Từ tối ưu diện tích đến chọn nội thất thông minh, mỗi chi tiết mang lại sự thoải mái và năng lượng tích cực. Hãy tham khảo các thiết kế hoàn chỉnh tại website Bim Concept để tìm kiếm cảm hứng, biến phòng ngủ nơi nghỉ ngơi tuyệt hảo nhất nhé!

