Bạn đang tìm ý tưởng thiết kế nhà phố 7x20m vừa hiện đại, vừa tối ưu công năng sử dụng? Với diện tích rộng rãi, mẫu nhà này mang đến nhiều lựa chọn về phong cách và cách bố trí không gian. Những bản vẽ nhà phố 7x20m mà Bim Concept chia sẻ trong bài viết này sẽ giúp gia chủ dễ dàng hình dung và triển khai thi công thực tế.
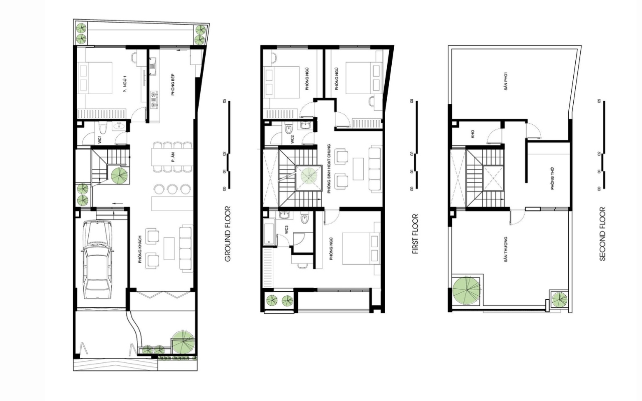
Bản vẽ bố trí mặt bằng nhà phố 7 x 20m
Trong quá trình thiết kế nhà phố 7x20m, việc sở hữu bản vẽ chi tiết đóng vai trò vô cùng quan trọng để định hình không gian sống khoa học và tiện nghi. Một bản vẽ nhà phố 7x20m hợp lý sẽ giúp gia chủ tối ưu diện tích, sắp xếp công năng phù hợp với nhu cầu sinh hoạt. Đồng thời, bản vẽ cũng là cơ sở để thi công chính xác, tiết kiệm thời gian và chi phí.




70+ Mẫu thiết kế nhà phố 7x20m đẹp ấn tượng
Với kinh nghiệm lâu năm trong lĩnh vực thiết kế và thi công nhà phố, Bim Concept luôn mang đến cho khách hàng những giải pháp kiến trúc tinh tế, tối ưu công năng và giàu tính thẩm mỹ. Bộ sưu tập hơn 70+ mẫu nhà phố 7x20m dưới đây sẽ gợi ý cho bạn nhiều phong cách đa dạng, từ hiện đại, tân cổ điển đến có sân vườn.







Cách bố trí công năng nhà phố 7x20m tiện nghi
Với diện tích 7x20m, gia chủ có thể linh hoạt trong việc sắp xếp không gian để đảm bảo sự tiện nghi và thẩm mỹ. Tùy theo phong cách thiết kế, cách bố trí công năng sẽ khác nhau, nhưng đều hướng đến tối ưu diện tích và mang lại trải nghiệm sống thoải mái cho các thành viên trong gia đình.
Mẫu thiết kế nội thất nhà phố 7x20m phong cách hiện đại
Phong cách hiện đại chú trọng không gian mở, thoáng đãng với sự kết hợp hài hòa giữa phòng khách, phòng bếp, các phòng ngủ và WC tiện nghi. Nội thất được lựa chọn tinh giản nhưng vẫn sang trọng, tạo cảm giác thoải mái và năng động. Đây là lựa chọn phù hợp cho những gia đình yêu thích sự trẻ trung, tiện dụng.
Xem chi tiết dự án: H’S HOUSE – QUẢNG NAM
Mẫu thiết kế nội thất nhà 7x20m phong cách tối giản
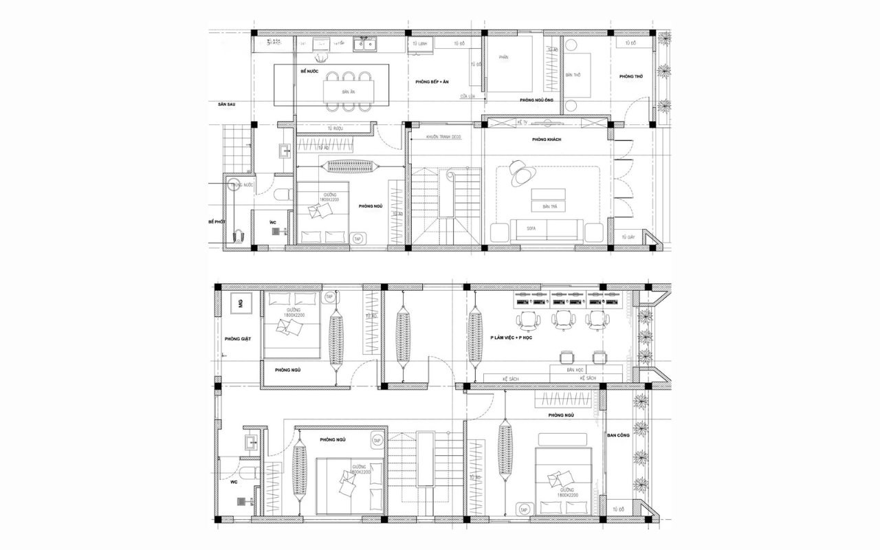
Phong cách tối giản mang đến sự gọn gàng, tinh tế với cách bố trí khoa học: phòng khách, phòng bếp, 3 phòng ngủ, phòng sinh hoạt chung, phòng giải trí, phòng thờ và WC. Nội thất ít chi tiết nhưng chú trọng công năng, mang lại không gian sống tiện nghi và tinh gọn.
>>> Xem chi tiết dự án: P’HOUSE – HÒA XUÂN
Mẫu thiết kế nội thất nhà phố 7x20m phong cách Japandi
Phong cách Japandi kết hợp tinh tế giữa sự ấm áp của gỗ và sự tối giản của nội thất. Công năng được bố trí hợp lý với phòng khách liền phòng bếp, 2 phòng ngủ gồm 1 master và 1 phòng bé dùng giường tầng, cùng hệ thống WC tiện lợi.
Xem chi tiết: D’S HOUSE – NGŨ HÀNH SƠN
Ngân sách thiết kế nhà phố 7x20m là bao nhiêu?
Chi phí thiết kế nhà phố thường phụ thuộc vào diện tích và phong cách kiến trúc mà gia chủ lựa chọn. Với diện tích 7x20m (140m²/sàn), mức giá trung bình theo công thức tính phí của Bim Concept là 200.000đ/m², nghĩa là tổng chi phí thiết kế kiến trúc sẽ dao động khoảng vài chục triệu đồng tùy số tầng. Đây chỉ là con số tham khảo, để có báo giá chính xác và chi tiết nhất cho nhu cầu của mình, bạn có thể liên hệ trực tiếp Bim Concept để được tư vấn.

Chính sách chiết khấu 50% phí thiết kế tại Bim Concept
Bim Concept mang đến ưu đãi đặc biệt dành cho khách hàng khi lựa chọn dịch vụ thi công trọn gói, đó là chính sách giảm 50% phí thiết kế. Đây là giải pháp giúp gia chủ tiết kiệm chi phí, đồng thời đảm bảo tính đồng bộ giữa ý tưởng thiết kế và chất lượng thi công thực tế. Chính sách này khẳng định cam kết của Bim Concept trong việc đồng hành cùng khách hàng kiến tạo không gian sống hoàn hảo.

Bài viết trên đây đã tổng hợp và chia sẻ chi tiết về mẫu thiết kế nhà phố 7x20m, từ ý tưởng kiến trúc đến bố trí công năng, giúp bạn hình dung rõ ràng không gian sống lý tưởng. Bim Concept sẵn sàng đồng hành để biến ý tưởng thành hiện thực, mang đến giải pháp thiết kế – thi công trọn gói hoàn hảo. Liên hệ ngay để được tư vấn chi tiết bạn nhé!

