Căn hộ chung cư với diện tích 60m2 hoàn toàn có thể trở thành tổ ấm mơ ước nếu được thiết kế thông minh và tinh tế. Với dịch vụ thiết kế nội thất chung cư 60m2, Bim Concept mang đến giải pháp tối ưu không gian, kết hợp hài hòa giữa thẩm mỹ và tiện nghi. Không chỉ dừng lại ở bản vẽ, Bim Concept còn đảm nhận thiết kế – thi công căn hộ trọn gói, giúp gia chủ yên tâm sở hữu không gian sống đồng bộ, hiện đại và mang dấu ấn riêng.
Mẫu thiết kế nội thất chung cư 60m2 đẹp, tối ưu diện tích
Để giúp bạn đọc có thêm lựa chọn đa dạng, Bim Concept sẽ giới thiệu chi tiết các mẫu thiết kế nội thất theo từng phong cách cụ thể. Mỗi xu hướng đều sở hữu vẻ đẹp và triết lý riêng, giúp căn hộ 60m2 của bạn trở nên độc đáo và cuốn hút. Mời bạn đọc cùng tham khảo ngay những mẫu thiết kế được ưa chuộng nhất để tìm ra ý tưởng hoàn hảo cho tổ ấm của mình.
Mẫu thiết kế nội thất chung cư 69m2 phong cách hiện đại
Vẻ đẹp tinh tế của phong cách hiện đại trong mẫu thiết kế nội thất căn hộ 60m2 này, nơi mỗi góc nhỏ đều là sự nâng niu cảm xúc. Không gian lý tưởng cho các căn hộ tại thiết kế nội thất căn hộ Sun Cosmo Residence Đà Nẵng, được dệt nên từ tông màu be trắng kem dịu dàng và những đường cong mềm mại của nội thất. Ánh sáng vàng ấm kết hợp cùng cách bố trí thông minh tạo nên một tổ ấm thư thái, thoáng đãng và ngập tràn sự an yên.
Mẫu thiết kế nội thất chung cư 60m2 phong cách Tropical
Căn hộ cho thuê này được thiết kế theo phong cách tối giản hiện đại, với tông gỗ sáng chủ đạo mang lại cảm giác ấm áp và dễ chịu. Không gian được bố trí thông minh, nội thất gọn gàng, đa năng giúp tối ưu diện tích nhưng vẫn giữ được sự thoáng đãng. Ánh sáng tự nhiên tràn ngập kết hợp cùng đường nét thiết kế đơn giản tạo nên một nơi ở tiện nghi, tinh tế và phù hợp cho mọi đối tượng thuê.
Có thể bạn quan tâm: Thiết kế nội thất chung cư SUN COSMO RESIDENCE
Mẫu thiết kế nội thất chung cư phong cách Wabi Sabi
Căn hộ phong cách Wabi Sabi này gây ấn tượng bởi bảng màu trung tính nhẹ nhàng, kết hợp cùng những đường cong mềm mại tạo cảm giác thư thái ngay khi bước vào. Chất liệu tự nhiên như gỗ sáng, vải thô và ánh sáng dịu được tận dụng tối đa để mang lại sự ấm áp và tinh giản. Mỗi góc nhỏ đều thể hiện tinh thần “đẹp trong sự mộc mạc”, tạo nên một không gian sống an yên, tối giản mà vẫn đầy tính thẩm mỹ.
Mẫu thiết kế nội thất chung cư phong cách Tân cổ điển
Thiết kế nội thất căn hộ Sun Cosmo Residence phong cách Tân cổ điển với sự kết hợp hài hòa giữa vẻ đẹp sang trọng và tinh tế hiện đại. Gam màu trung tính cùng những đường phào chỉ mềm mại tạo nên không gian thanh lịch, trong khi nội thất được lựa chọn kỹ lưỡng giúp tăng cảm giác đẳng cấp. Từ phòng khách, bếp ăn đến phòng ngủ và phòng tắm, mỗi khu vực đều toát lên sự chỉn chu, mang đến trải nghiệm sống tiện nghi và đầy phong cách.
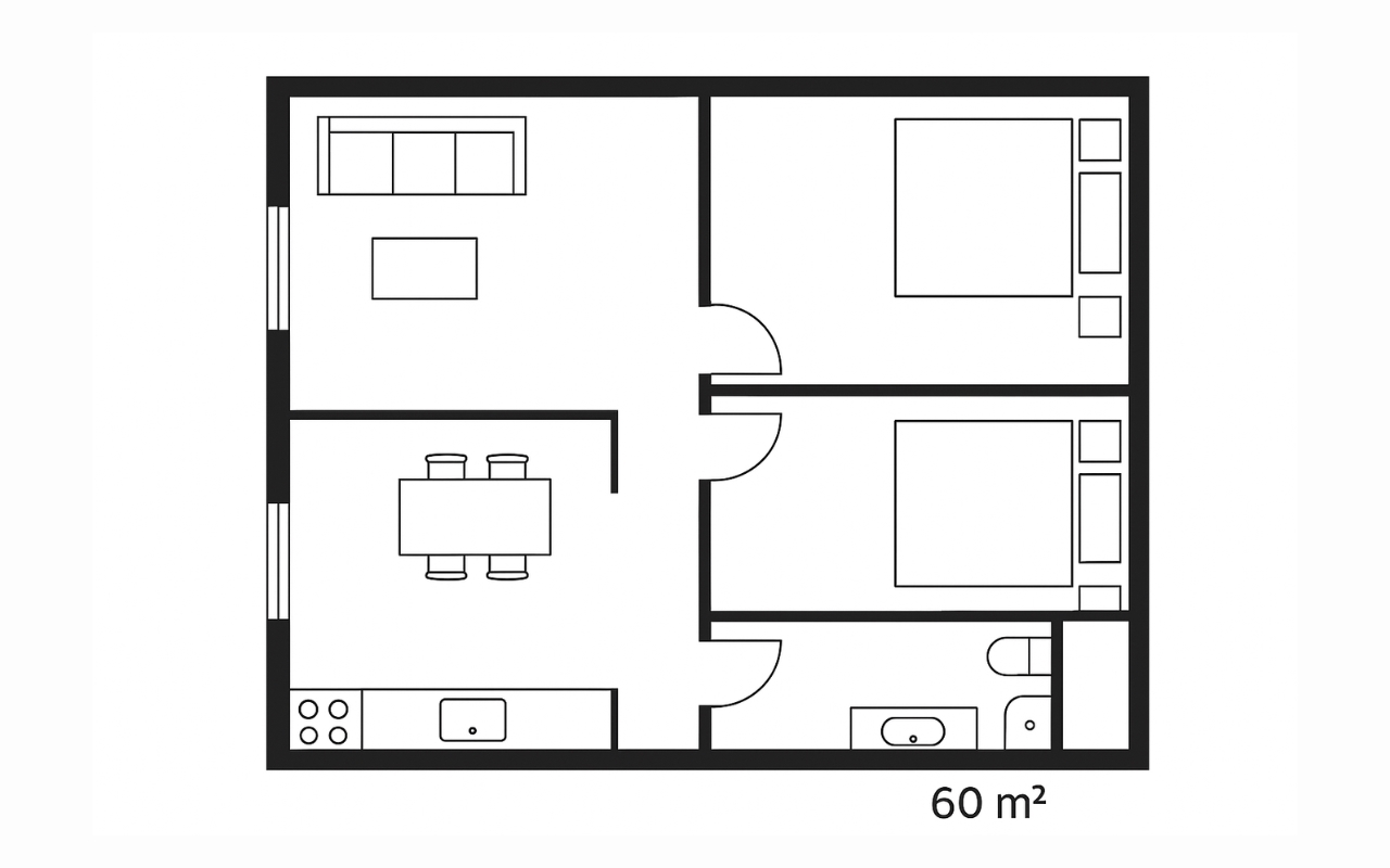
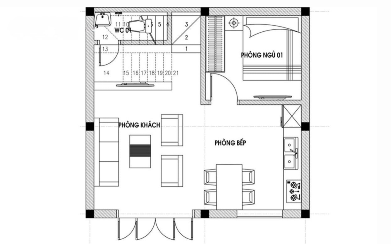
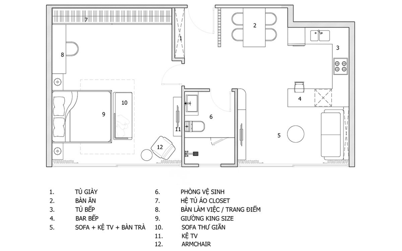
Bản vẽ bố trí mặt bằng nội thất căn hộ 60m2
Trong quá trình thiết kế nội thất căn hộ Sun Cosmo Residence Đà Nẵng, Bim Concept đã sở hữu hàng trăm bản vẽ bố trí mặt bằng khoa học. Vì vậy, bạn có thể tham khảo để lấy ý tưởng cho ngôi nhà của mình nhé!





Báo giá thiết kế nội thất chung cư 60m2 năm 2025
Chi phí thiết kế – thi công căn hộ là yếu tố được quan tâm hàng đầu của nhiều khách hàng, nhất là các khách hàng đang muốn tìm đơn vị thiết kế nội thất căn hộ Sun Cosmo Residence Đà Nẵng. Tại Bim Concept, bảng giá thiết kế được xây dựng minh bạch, linh hoạt theo nhu cầu và phong cách riêng của từng khách hàng.

Nguyên tắc thiết kế nội thất chung cư 60m2
Khi bước vào quá trình thiết kế nội thất chung cư 60m2, gia chủ cần tuân theo những nguyên tắc cơ bản để vừa tối ưu không gian, vừa đảm bảo tính thẩm mỹ. Đây không chỉ là giải pháp cho căn hộ diện tích vừa phải, mà còn mang lại sự tiện nghi, hiện đại và thoải mái cho cuộc sống hàng ngày.
Tối ưu hóa công năng sử dụng
Trong thiết kế nội thất chung cư 60m2, việc phân bổ diện tích hợp lý cho từng phòng rất quan trọng. Không gian cần được tổ chức khoa học để vừa đảm bảo sinh hoạt thuận tiện, vừa tránh lãng phí diện tích. Nguyên tắc này cũng áp dụng hiệu quả cho thiết kế nội thất căn hộ và thiết kế căn hộ dịch vụ, nơi công năng được đặt lên hàng đầu.

Lựa chọn phong cách thiết kế phù hợp
Phong cách thiết kế ảnh hưởng trực tiếp đến cảm giác không gian trong căn hộ. Với diện tích 60m2, phong cách hiện đại, tối giản hoặc Scandinavian thường được ưu tiên để tạo sự thông thoáng. Đây là giải pháp giúp thiết kế nội thất căn hộ trở nên nhẹ nhàng, tinh tế và không bị gò bó.

Sử dụng màu sắc và ánh sáng thông minh
Ánh sáng tự nhiên và màu sắc trung tính giúp căn hộ nhỏ trở nên rộng rãi hơn. Khi kết hợp thêm ánh sáng nhân tạo hợp lý, thiết kế nội thất chung cư 60m2 sẽ vừa hài hòa vừa tạo cảm giác sang trọng. Nguyên tắc này được áp dụng phổ biến trong thiết kế căn hộ dịch vụ nhằm tạo ấn tượng ngay từ cái nhìn đầu tiên.

Nội thất đa năng và tiết kiệm diện tích
Các sản phẩm nội thất đa năng như giường tủ kết hợp, bàn gấp, kệ thông minh giúp tối ưu diện tích đáng kể. Nhờ đó, thiết kế nội thất căn hộ vừa đảm bảo công năng vừa giữ được sự gọn gàng, hiện đại. Những món nội thất thông minh chắc chắn sẽ là giải pháp lý tưởng cho những căn hộ dịch vụ, nơi cần tối ưu hóa không gian cho nhiều mục đích sử dụng.

Có thể bạn quan tâm: 99+ Mẫu thiết kế nội thất chung cư đẹp hiện đại, tiện nghi
Bim Concept – Đơn vị thiết kế, thi công nội thất căn hộ 60m2
Bim Concept là đơn vị uy tín trong lĩnh vực thiết kế – thi công nội thất căn hộ chung cư, đặc biệt nổi bật với các dự án tại Sun Cosmo Residence Đà Nẵng. Với đội ngũ kiến trúc sư giàu kinh nghiệm và quy trình làm việc chuyên nghiệp, Bim Concept mang đến không gian sống tiện nghi, hiện đại và tối ưu công năng cho từng căn hộ 60m2. Dưới đây là những ưu điểm nổi bật khi lựa chọn dịch vụ thiết kế nội thất căn hộ tại Bim Concept:
- Tư vấn thiết kế sáng tạo, phù hợp phong cách sống và nhu cầu gia chủ
- Chiết khấu 50% phí thiết kế khi thi công nội thất trọn gói
- Sử dụng vật liệu cao cấp, bền đẹp, thân thiện với môi trường
- Đảm bảo hồ sơ đầy đủ gồm: 3D nội thất, bản vẽ kỹ thuật, layout nội thất
Hiện nay, chính sách miễn phí 50% phí thiết kế được áp dụng cho tất cả các khách hàng của Bim Concept. Vì vậy, bạn có thể liên hệ cho Bim Concept để được tư vấn chi tiết hơn nhé!

