Không gian sống 89m2 sẽ trở nên thông minh và ấn tượng khi được bố trí nội thất khoa học, công năng và thẩm mỹ. Trong quá trình thiết kế nội thất chung cư 89m2, Bim Concept luôn chú trọng tối ưu ánh sáng, màu sắc và vật liệu, mang lại không gian sống hiện đại, tiện nghi cho gia chủ. Cùng khám phá ngay các mẫu thiết kế căn hộ 89m2 để tìm cảm hứng cho tổ ấm của bạn nhé!
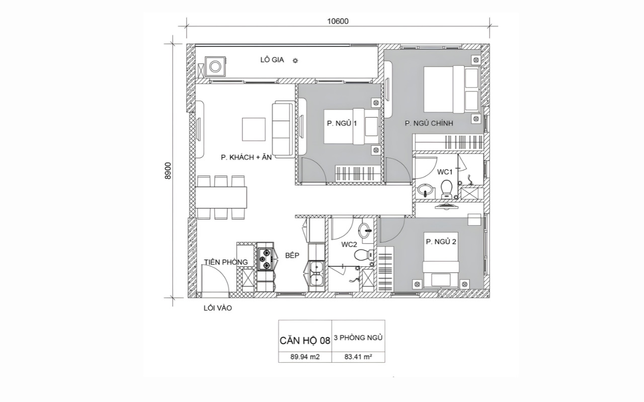
Bản vẽ bố trí mặt bằng chung cư 89m2
Trước khi bắt tay vào hoàn thiện nội thất, việc xem xét bản vẽ bố trí mặt bằng giúp hình dung rõ cách phân chia không gian và dòng di chuyển trong căn hộ. Với diện tích 89m2, từng khu vực chức năng được sắp xếp hợp lý để tối ưu công năng và ánh sáng tự nhiên.






Tham khảo thêm:
- [Top 50] Mẫu thiết kế nội thất chung cư 69m2 đẹp nhất 2025
- 50+ Mẫu thiết kế nội thất chung cư 50m2 đẹp, tiện nghi
BST Mẫu thiết kế nội thất chung cư 89m2 đẹp, tiện nghi
Nếu bạn đang tìm ý tưởng để thiết kế nội thất chung cư 89m2, bộ sưu tập dưới đây từ Bim Concept chắc chắn sẽ mang đến nhiều gợi ý thú vị. Mỗi mẫu thiết kế nội thất căn hộ được thể hiện với phong cách riêng, vừa đảm bảo tính thẩm mỹ, vừa tối ưu công năng sử dụng.
Mẫu thiết kế nội thất chung cư 89m2 phong cách Wabi Sabi
Xem dự án: SUN COSMO RESIDENCE – 89M2
Mẫu thiết kế nội thất căn hộ dịch vụ gần 89m2 hiện đại
Mẫu thiết kế nội thất chung cư gần 89m2 phong cách hiện đại sử dụng tone màu nâu làm chủ đạo, mang đến cảm giác ấm áp và sang trọng. Không gian phòng khách liền bếp được bố trí mở, giúp tối ưu diện tích và tạo sự kết nối giữa các thành viên. Hai phòng ngủ được thiết kế tiện nghi với nội thất gọn gàng, màu sắc hài hòa. Hai toilet được sắp xếp hợp lý, đảm bảo sự riêng tư và tiện lợi trong sinh hoạt hàng ngày.
Xem dự án: SUN COSMO RESIDENCE – 83M2
Mẫu thiết kế nội thất căn hộ phong cách hiện đại, năng động
Mẫu thiết kế nội thất chung cư gần 89m2 phong cách hiện đại, năng động gây ấn tượng với tone màu pastel nhẹ nhàng, trẻ trung và tươi sáng. Không gian phòng khách liền bếp được bố trí mở, mang lại cảm giác thoáng rộng và kết nối liền mạch. Phòng ngủ master tinh tế, tiện nghi trong khi phòng ngủ bé được thiết kế sinh động, phù hợp độ tuổi. Hai toilet được sắp đặt khoa học, đảm bảo sự tiện lợi và riêng tư cho cả gia đình.
Xem dự án: SUN COSMO RESIDENCE – 80M2
Cách tối ưu chi phí khi thiết kế nội thất chung cư 89m2
Việc thiết kế nội thất chung cư 89m2 đòi hỏi sự tính toán kỹ lưỡng để vừa đảm bảo thẩm mỹ, vừa phù hợp ngân sách. Bằng cách lựa chọn vật liệu, phong cách và đơn vị thi công hợp lý, gia chủ có thể sở hữu không gian sống tiện nghi mà vẫn tiết kiệm chi phí. Dưới đây là một số gợi ý giúp bạn tối ưu hiệu quả đầu tư khi thiết kế nội thất căn hộ.
Lựa chọn phong cách thiết kế phù hợp ngân sách
Phong cách thiết kế ảnh hưởng trực tiếp đến chi phí thi công và trang trí nội thất. Với căn hộ 89m2, gia chủ có thể ưu tiên phong cách hiện đại, tối giản để giảm bớt chi tiết phào chỉ và vật liệu đắt tiền. Cách phối màu trung tính, bố cục gọn gàng giúp không gian vẫn sang trọng mà không cần đầu tư quá nhiều.

Tận dụng nội thất đa năng và không gian sẵn có
Việc sử dụng nội thất thông minh như giường kết hợp ngăn kéo, bàn gấp hay tủ âm tường giúp tối ưu diện tích và giảm số lượng món đồ cần mua. Ngoài ra, tái sử dụng các chi tiết có sẵn như hệ tủ bếp, kệ tivi nếu còn mới cũng giúp tiết kiệm đáng kể chi phí. Sự linh hoạt trong bố trí mang đến không gian tiện nghi mà vẫn đảm bảo tính thẩm mỹ cho căn hộ.

Lựa chọn đơn vị thiết kế – thi công trọn gói
Khi chọn gói thiết kế và thi công nội thất trọn gói, gia chủ được hưởng mức giá ưu đãi hơn so với việc thuê riêng lẻ từng hạng mục. Đơn vị chuyên nghiệp sẽ tối ưu vật liệu, nhân công và thời gian thi công, đảm bảo đồng bộ về phong cách. Đây là giải pháp giúp tiết kiệm chi phí mà vẫn đảm bảo chất lượng trong thiết kế nội thất chung cư 89m2.

Tìm đơn vị thiết kế – thi công nội thất căn hộ uy tín
Với nhiều năm kinh nghiệm trong lĩnh vực thiết kế căn hộ dịch vụ và thi công thực tế tại hàng loạt dự án chung cư cao cấp ở Đà Nẵng như Sun Cosmo Residence, Regal Pavillon, Bim Concept được đánh giá là một trong những đơn vị uy tín hàng đầu. Đội ngũ kiến trúc sư của Bim luôn chú trọng đến tính thẩm mỹ, công năng và chi phí tối ưu cho từng khách hàng. Dưới đây là những ưu điểm nổi bật khi lựa chọn Bim Concept làm đối tác thiết kế – thi công nội thất căn hộ:
- Tư vấn thiết kế cá nhân hóa, phù hợp với phong cách và ngân sách của từng khách hàng.
- Quy trình làm việc chuyên nghiệp, minh bạch và cam kết đúng tiến độ.
- Đội ngũ thi công tay nghề cao, đảm bảo chất lượng hoàn thiện từng chi tiết.
- Cung cấp gói thiết kế – thi công trọn gói, giúp tiết kiệm chi phí và thời gian.
- Chính sách bảo hành, hậu mãi rõ ràng, hỗ trợ tận tâm sau bàn giao.

Một bản thiết kế nội thất chung cư 89m2 hoàn chỉnh không chỉ giúp tối ưu công năng mà còn nâng tầm giá trị thẩm mỹ cho không gian sống. Với đội ngũ kiến trúc sư giàu kinh nghiệm, Bim Concept luôn mang đến giải pháp thiết kế trọn gói, sáng tạo và hiệu quả. Liên hệ ngay để sở hữu không gian sống đẹp, hiện đại và đầy cảm hứng.
>>>Tham khảo thêm: 95+ Mẫu thiết kế căn hộ dịch vụ đẹp, chi phí đầu tư hợp lý

